Kesit
25/64
Paylaş
Resmi Orjinal Boyutunda Göster
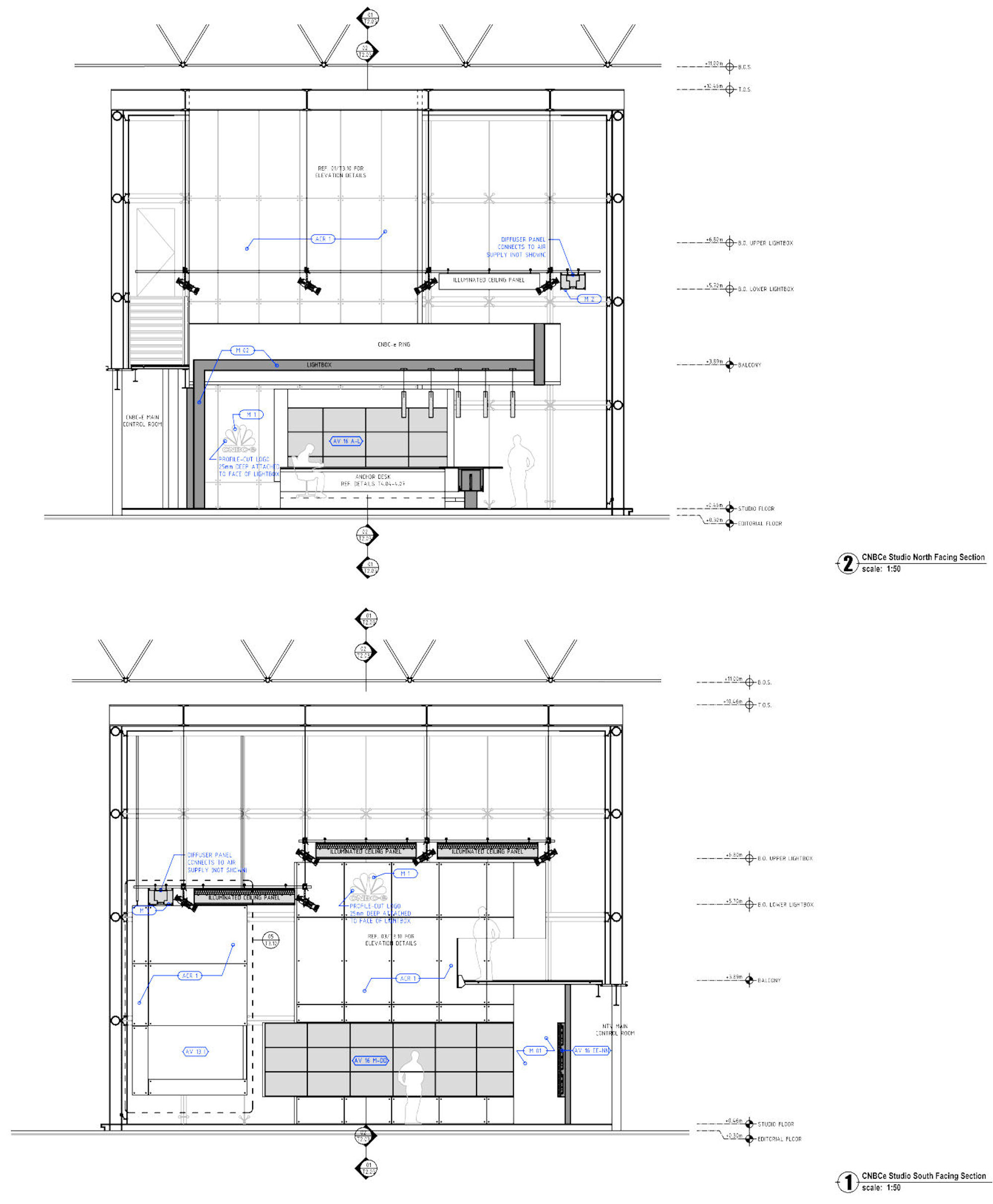
NTV & CNBCe Stüdyo Tasarımı
Proje Yeri: İstanbul, Maslak, Şişli
Proje Ofisi: Midek Mingü Mimarlık, Clickspring Design
Proje Tipi: Ofis, Televizyon - Radyo Yapısı
Tasarım Ekibi: Erik Ulfers, Beyza Özer, Özgür Özer, Nazlı Gülgen
İşveren: Doğuş Yayın Grubu
Yardımcı: Gökhan Akbulut
Proje Yöneticisi: Hasan Mingü
Aydınlatma Projesi: Citylight
Statik Projesi: SOM Mühendislik
Mekanik Projesi: Total Teknik Mekanik Elektronik
Elektrik Projesi: Tasarım Proje
Proje Başlangıç Yılı: 2010
Proje Bitiş Yılı: 2012
İnşaat Başlangıç Yılı: 2010
İnşaat Bitiş Yılı: 2012
Toplam İnşaat Alanı: 22.000 m²