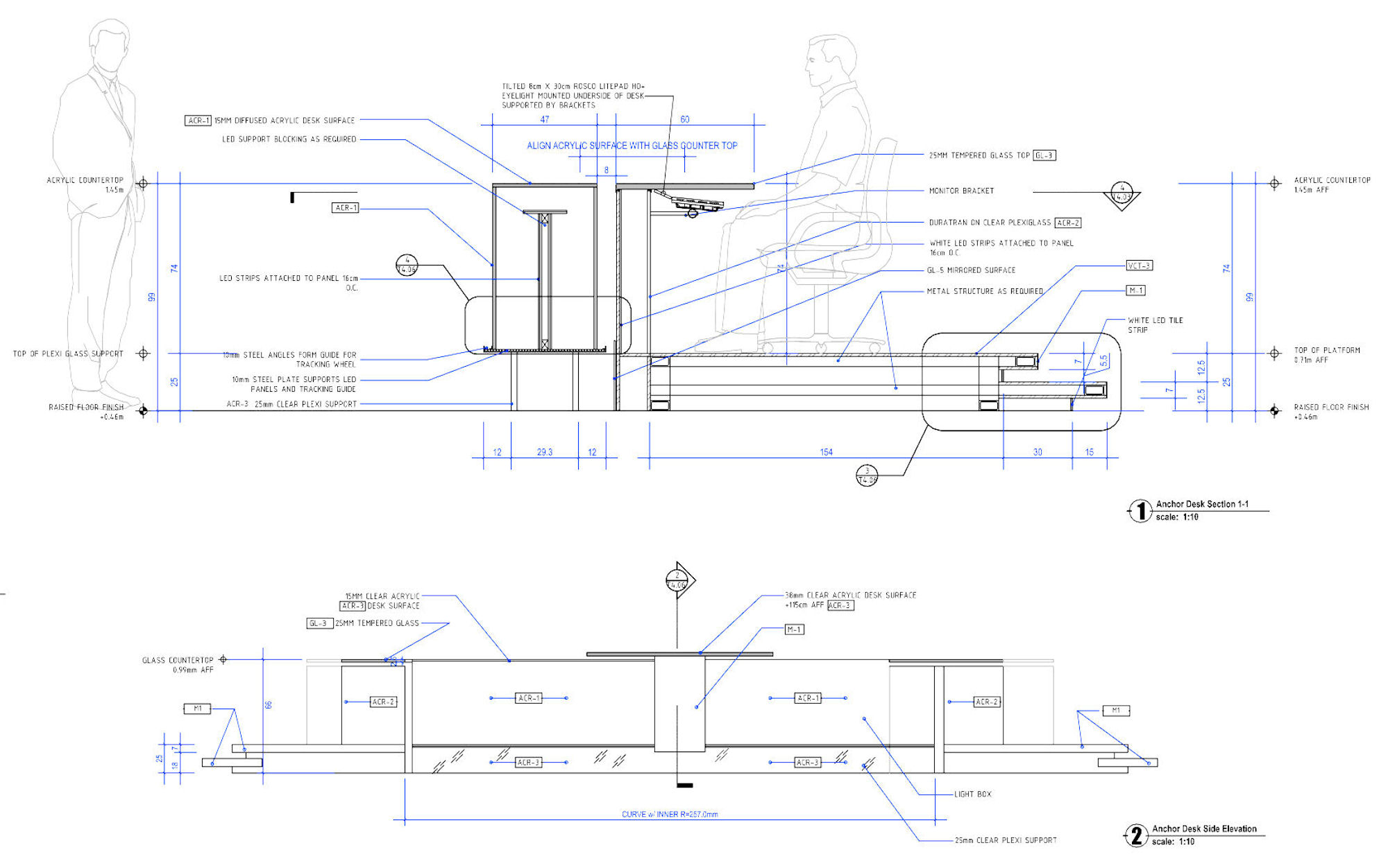
Masa Kesit ve Görünüş
37/64
Paylaş
Resmi Orjinal Boyutunda Göster
NTV & CNBCe Stüdyo Tasarımı
Project Location: İstanbul, Maslak, Şişli
Project Office: Midek Mingü Mimarlık, Clickspring Design
Project Type: Offices, Televizyon - Radyo Yapısı
Tasarım Ekibi: Erik Ulfers, Beyza Özer, Özgür Özer, Nazlı Gülgen
Employer: Doğuş Yayın Grubu
Yardımcı: Gökhan Akbulut
Projcet Manager: Hasan Mingü
Lighting Project: Citylight
Structural Project: SOM Mühendislik
Mechanical Project: Total Teknik Mekanik Elektronik
Electrical Project: Tasarım Proje
Project Start Date: 2010
Project End Date: 2012
Construction Start Date: 2010
Construction End Date: 2012
Total Construction Area: 22.000 m²