12/13
Paylaş
Resmi Orjinal Boyutunda Göster
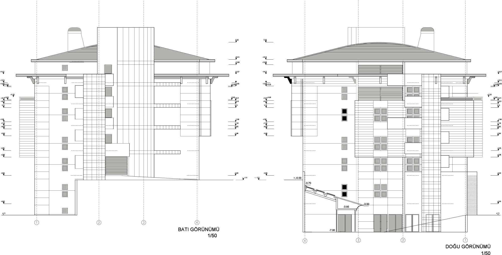
Doğubayazıt Özel Mediza Hastanesi
Proje Yeri: Doğubayazıt, Ağrı
Proje Ofisi: Timöz Mimarlık
Proje Tipi: Hastane / Poliklinik
Proje Tipi Grubu: Sağlık
Tasarım Ekibi: Levent Timurhan
Danışman: Sedat Çanakcı, Reha Benderlioğlu
Yardımcı: Süheyla Karakaya
Statik Projesi: Atilla Eser
Mekanik Projesi: Bahri Türkmen
Elektrik Projesi: Ersoy Dede
Proje Başlangıç Yılı: 2009
Proje Bitiş Yılı: 2016
İnşaat Bitiş Yılı: 2016
Toplam İnşaat Alanı: 5,000 m²