6/13
Paylaş
Resmi Orjinal Boyutunda Göster
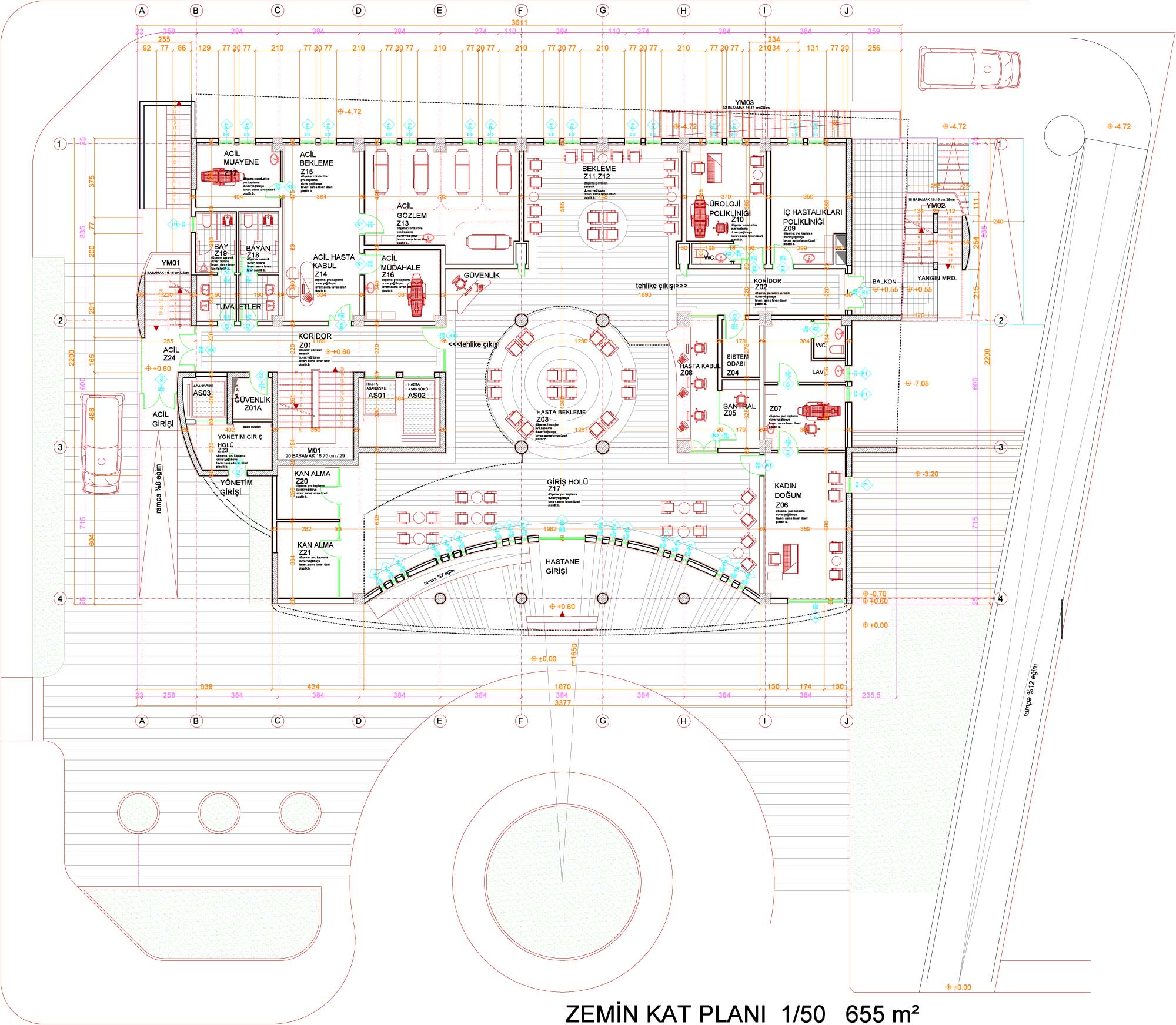
Doğubayazıt Özel Mediza Hastanesi
Project Location: Doğubayazıt, Ağrı
Project Office: Timöz Mimarlık
Project Type: Hospital / Clinic
Proje Tipi Grubu: Sağlık
Tasarım Ekibi: Levent Timurhan
Consultant: Sedat Çanakcı, Reha Benderlioğlu
Yardımcı: Süheyla Karakaya
Structural Project: Atilla Eser
Mechanical Project: Bahri Türkmen
Electrical Project: Ersoy Dede
Project Start Date: 2009
Project End Date: 2016
Construction End Date: 2016
Total Construction Area: 5,000 m²