10/14
Paylaş
Resmi Orjinal Boyutunda Göster
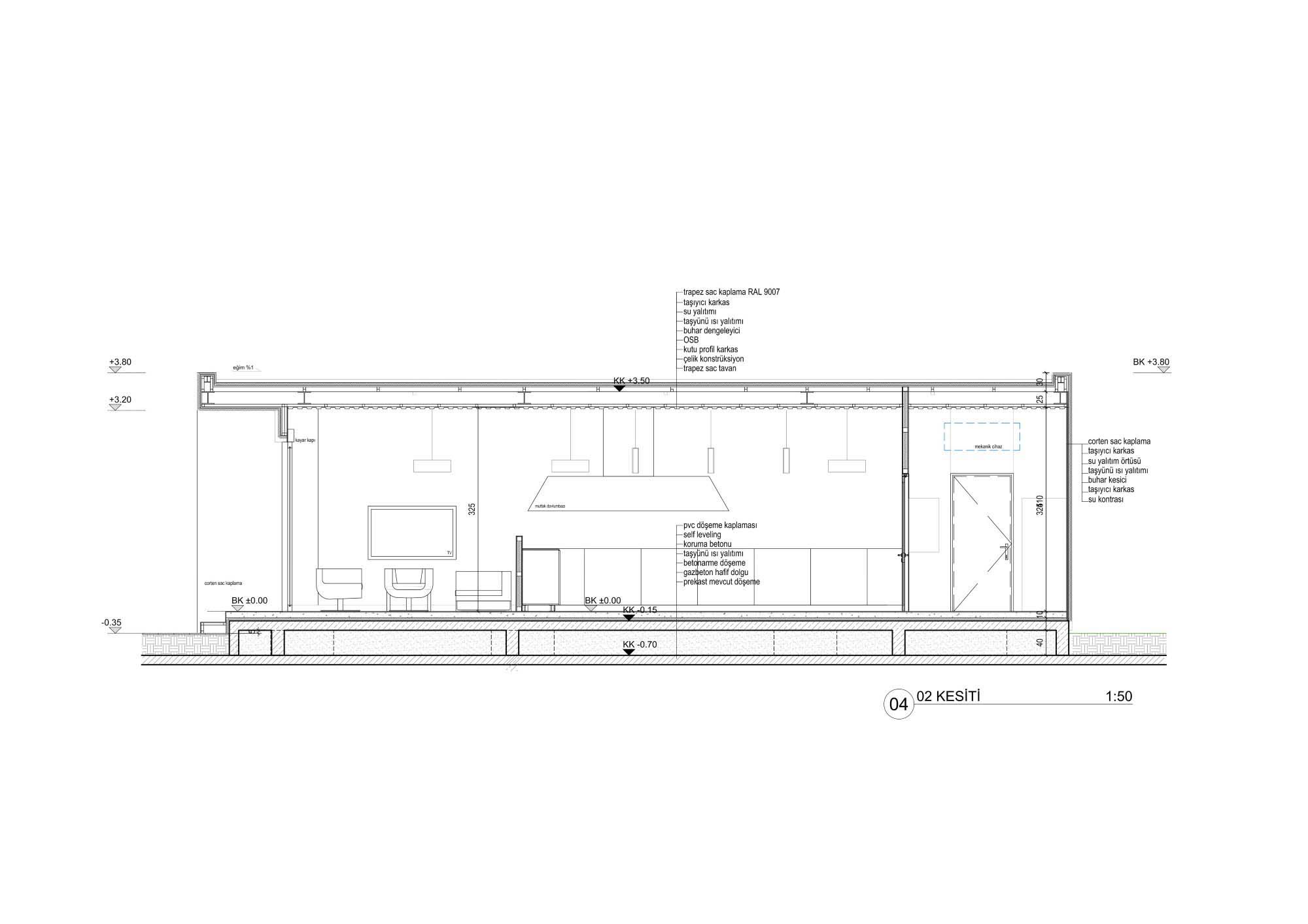
D Cafe Personel Kafeteryası
Project Location: Kocaeli (İzmit), Gebze
Project Office: MuuM
Project Type: Restaurant / Café / Bar
Proje Tipi Grubu: Commercial
Tasarım Ekibi: Murat Aksu, Umut İyigün
Employer: Doğuş Otomotiv
Yardımcı: Anday Bodur, Yılmaz Kürtüncü
Ana Yüklenici: Sam İnşaat
Structural Project: Sigma Mühendislik
Mechanical Project: Doreng Mühendislik
Electrical Project: ATLANTİS Mühendislik
Photography: Anday Bodur
Project Start Date: 2015
Project End Date: 2015
Construction Start Date: 2015
Construction End Date: 2015
Building Plot Area: 1,200 m2
Total Construction Area: 125 m²