9/14
Paylaş
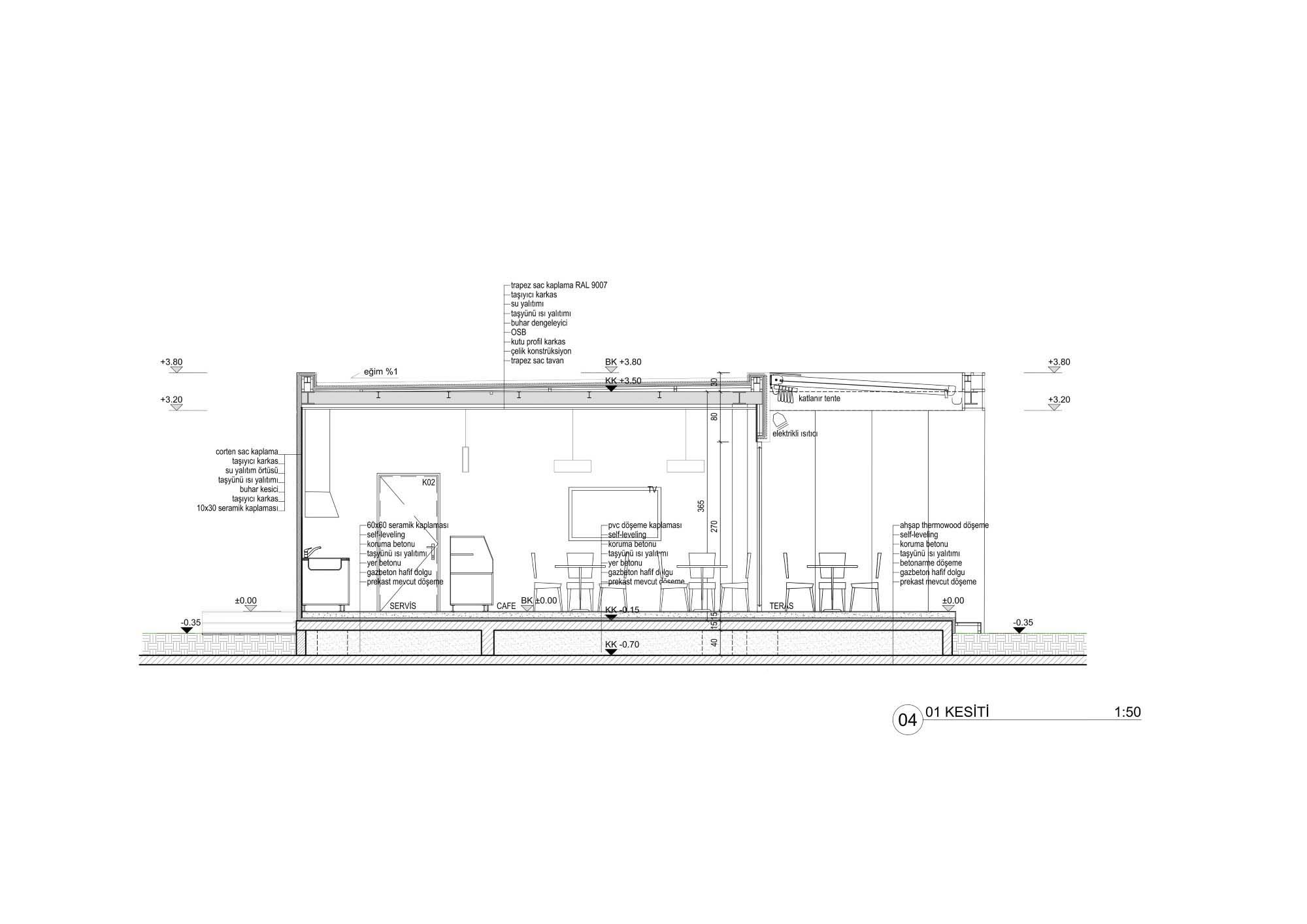
Resmi Orjinal Boyutunda Göster
D Cafe Personel Kafeteryası
Proje Yeri: Kocaeli (İzmit), Gebze
Proje Ofisi: MuuM
Proje Tipi: Restoran / Kafe / Bar
Proje Tipi Grubu: Ticari
Tasarım Ekibi: Murat Aksu, Umut İyigün
İşveren: Doğuş Otomotiv
Yardımcı: Anday Bodur, Yılmaz Kürtüncü
Ana Yüklenici: Sam İnşaat
Statik Projesi: Sigma Mühendislik
Mekanik Projesi: Doreng Mühendislik
Elektrik Projesi: ATLANTİS Mühendislik
Fotoğraf: Anday Bodur
Proje Başlangıç Yılı: 2015
Proje Bitiş Yılı: 2015
İnşaat Başlangıç Yılı: 2015
İnşaat Bitiş Yılı: 2015
Arsa Alanı: 1,200 m2
Toplam İnşaat Alanı: 125 m²