11/27
Paylaş
Resmi Orjinal Boyutunda Göster
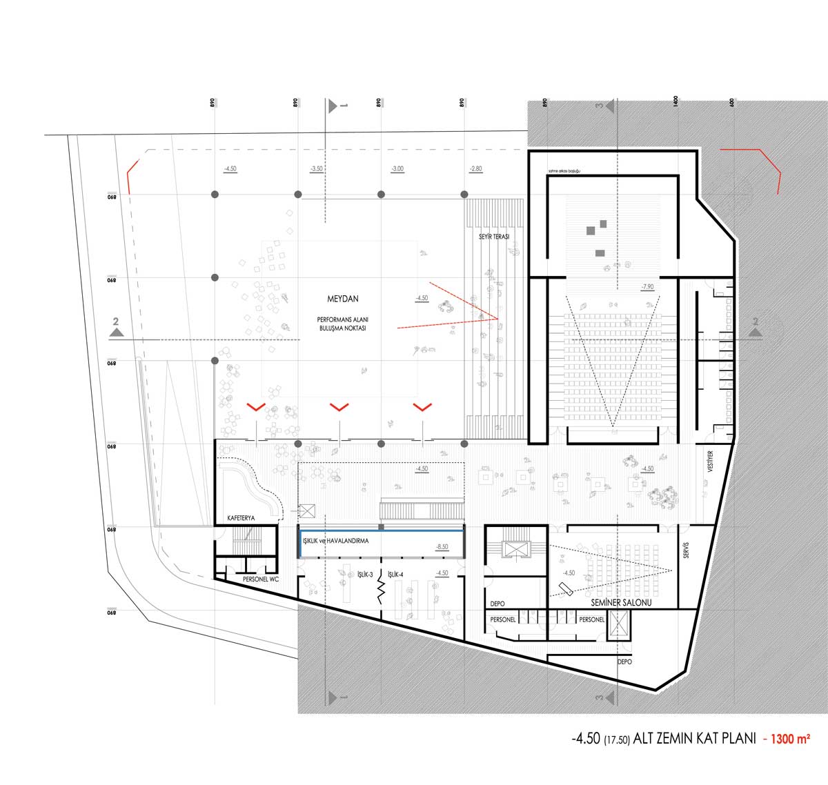
Katılımcı, Caferağa Spor ve Kültür Merkezi Mimari Proje Yarışması
Proje Yeri: İstanbul, Kadıköy
Proje Tipi: Spor Salonu
Proje Tipi Grubu: Katılımcı
Tasarım Ekibi: Ayşegül Taşkın, Barışcan Cüce, Funda Tan, Hüseyin Kahvecioğlu, Melis Nur İhtiyar Varol, Nurbin Paker
Danışman: Oğuz Cem Çelik, Ömer Yalçın
Yardımcı: Sibel Ürem