8/27
Paylaş
Resmi Orjinal Boyutunda Göster
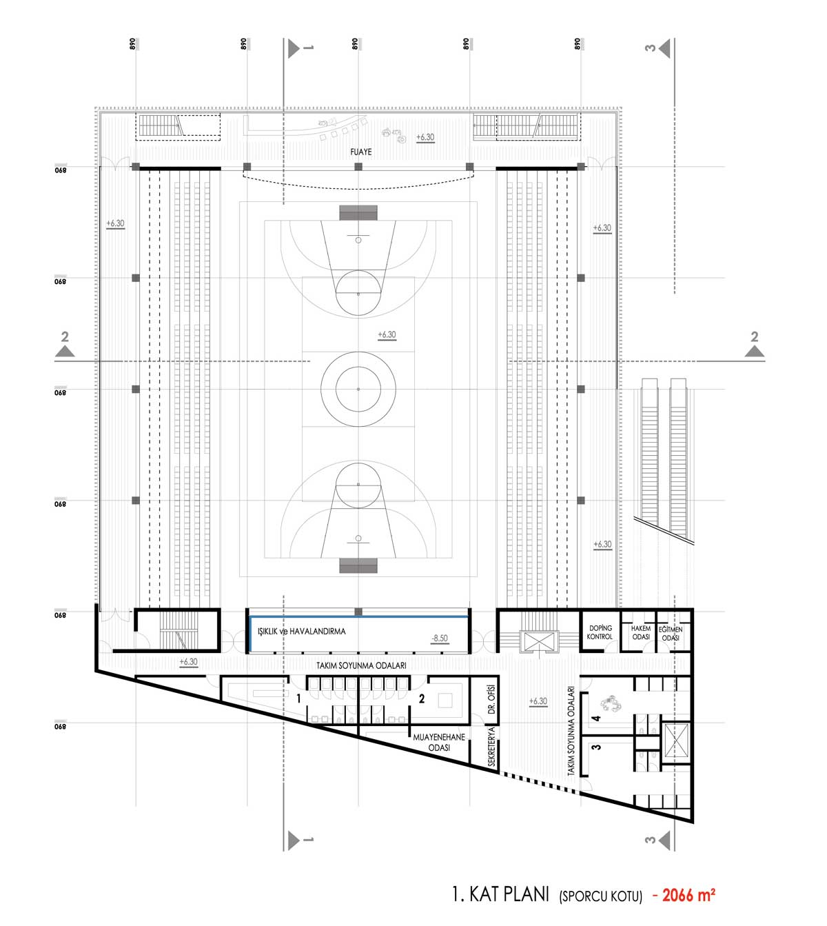
Katılımcı, Caferağa Spor ve Kültür Merkezi Mimari Proje Yarışması
Project Location: İstanbul, Kadıköy
Project Type: Sports Hall
Proje Tipi Grubu: Katılımcı
Tasarım Ekibi: Ayşegül Taşkın, Barışcan Cüce, Funda Tan, Hüseyin Kahvecioğlu, Melis Nur İhtiyar Varol, Nurbin Paker
Consultant: Oğuz Cem Çelik, Ömer Yalçın
Yardımcı: Sibel Ürem