17/26
Paylaş
Resmi Orjinal Boyutunda Göster
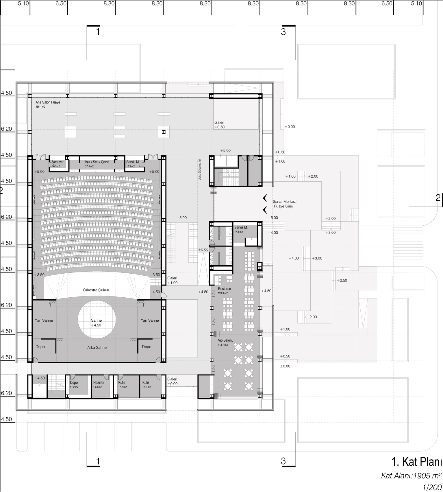
3. Ödül (Office PAN)
Project Location: Gaziantep, Şehitkamil
Project Office: OfficePAN Mimarlık, NODE Architects
Project Type: Cultural Center
Proje Tipi Grubu: 3. Ödül
Tasarım Ekibi: Cihan Sevindik, Zeynep Canan Aksu, Doğan Türkkan
Consultant: Özgür Şentürk, Melih Sayı, Zair Gezmen
Yardımcı: Yusuf Ertaş, Mine Sak