9/26
Paylaş
Resmi Orjinal Boyutunda Göster
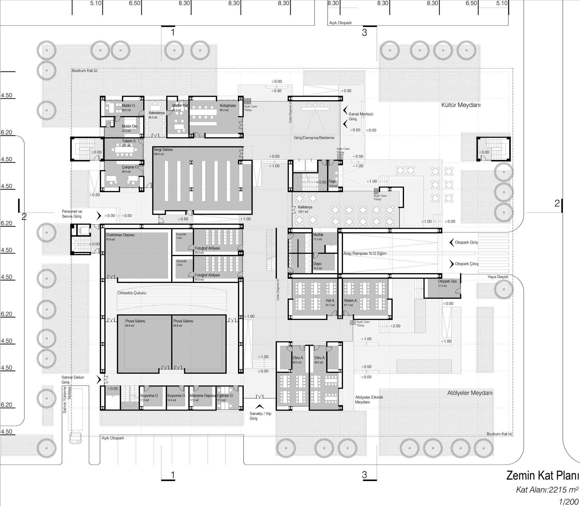
3. Ödül (Office PAN)
Proje Yeri: Gaziantep, Şehitkamil
Proje Ofisi: OfficePAN Mimarlık, NODE Architects
Proje Tipi: Kültür Merkezi
Proje Tipi Grubu: 3. Ödül
Tasarım Ekibi: Cihan Sevindik, Zeynep Canan Aksu, Doğan Türkkan
Danışman: Özgür Şentürk, Melih Sayı, Zair Gezmen
Yardımcı: Yusuf Ertaş, Mine Sak