2/11
Paylaş
Resmi Orjinal Boyutunda Göster
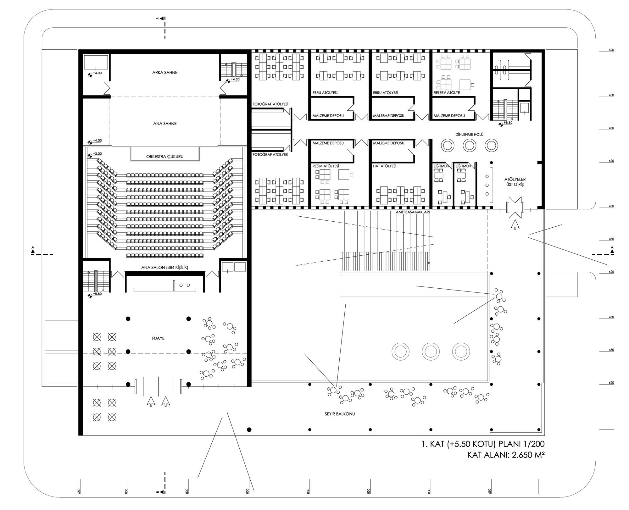
1. Ödül, Şehitkamil Belediyesi Sanat Merkezi Yarışması
Project Location: Gaziantep, Şehitkamil
Project Type: Cultural Center
Proje Tipi Grubu: 1. Ödül
Tasarım Ekibi: Orkun Özüer, Kerem Çınar, Görkem Rabia Kanat
Consultant: Güven Özer, Ahmet Akçaya, Ramazan Zeytun