3/11
Paylaş
Resmi Orjinal Boyutunda Göster
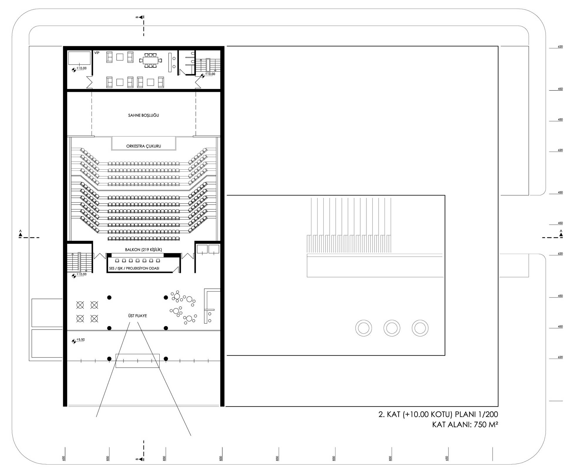
1. Ödül, Şehitkamil Belediyesi Sanat Merkezi Yarışması
Proje Yeri: Gaziantep, Şehitkamil
Proje Tipi: Kültür Merkezi
Proje Tipi Grubu: 1. Ödül
Tasarım Ekibi: Orkun Özüer, Kerem Çınar, Görkem Rabia Kanat
Danışman: Güven Özer, Ahmet Akçaya, Ramazan Zeytun