3/15
Paylaş
Resmi Orjinal Boyutunda Göster
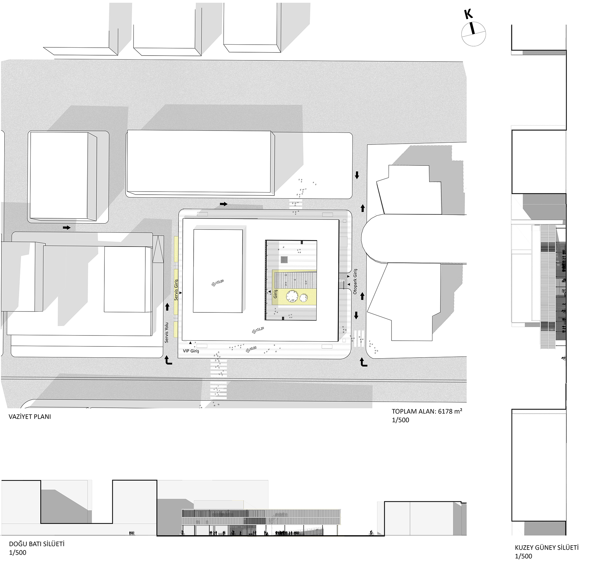
Katılımcı, Şehitkamil Belediyesi Sanat Merkezi Yarışması
Project Location: Gaziantep, Şehitkamil
Project Type: Cultural Center
Proje Tipi Grubu: Katılımcı
Tasarım Ekibi: Jawad Assaad, Feyyaz Çakıroğlu, Tarek Aldeeb, Ayşe Sena Çıldır, Şengül Güneş
Consultant: Fayat Genç