5/15
Paylaş
Resmi Orjinal Boyutunda Göster
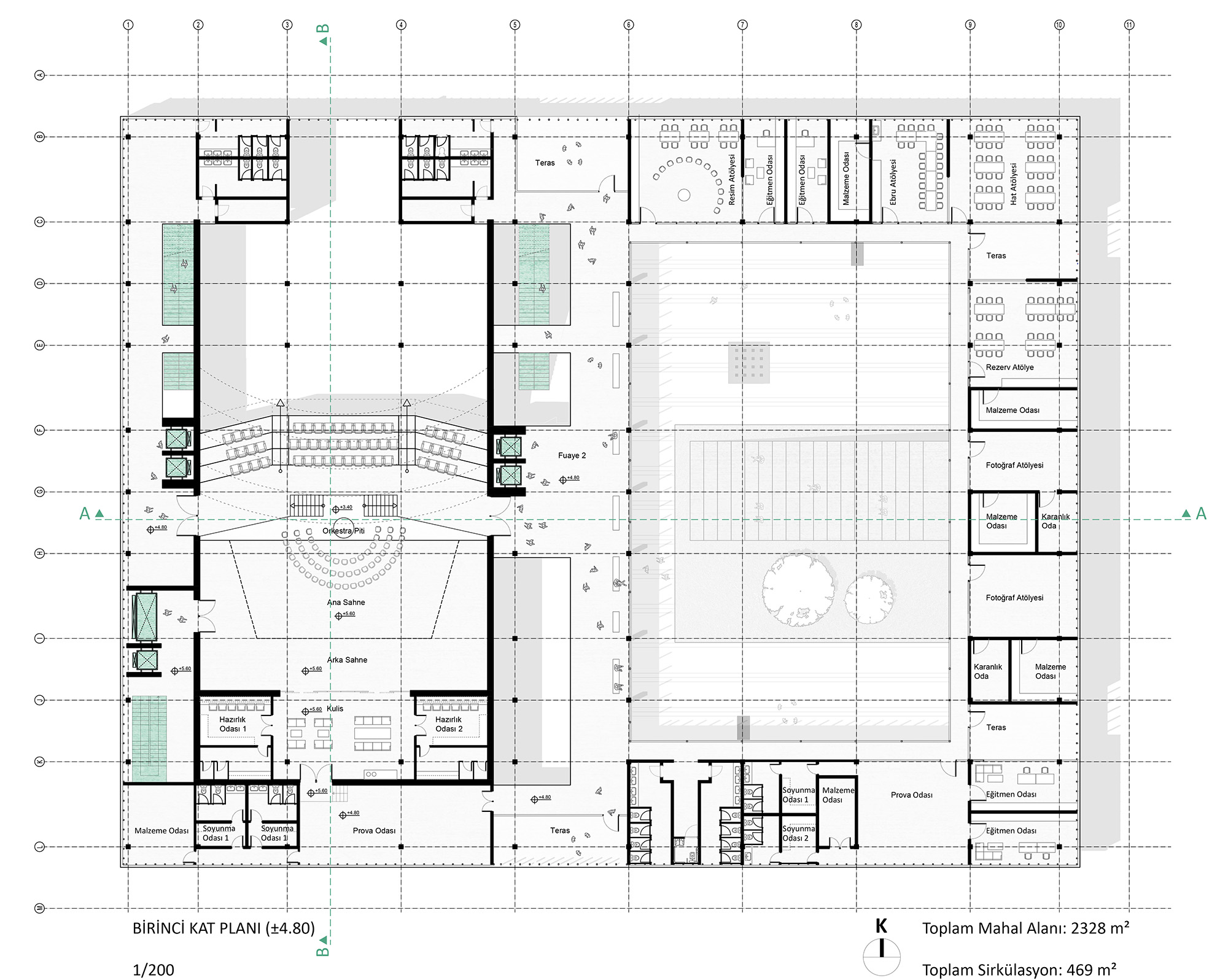
Katılımcı, Şehitkamil Belediyesi Sanat Merkezi Yarışması
Proje Yeri: Gaziantep, Şehitkamil
Proje Tipi: Kültür Merkezi
Proje Tipi Grubu: Katılımcı
Tasarım Ekibi: Jawad Assaad, Feyyaz Çakıroğlu, Tarek Aldeeb, Ayşe Sena Çıldır, Şengül Güneş
Danışman: Fayat Genç