21/28
Paylaş
Resmi Orjinal Boyutunda Göster
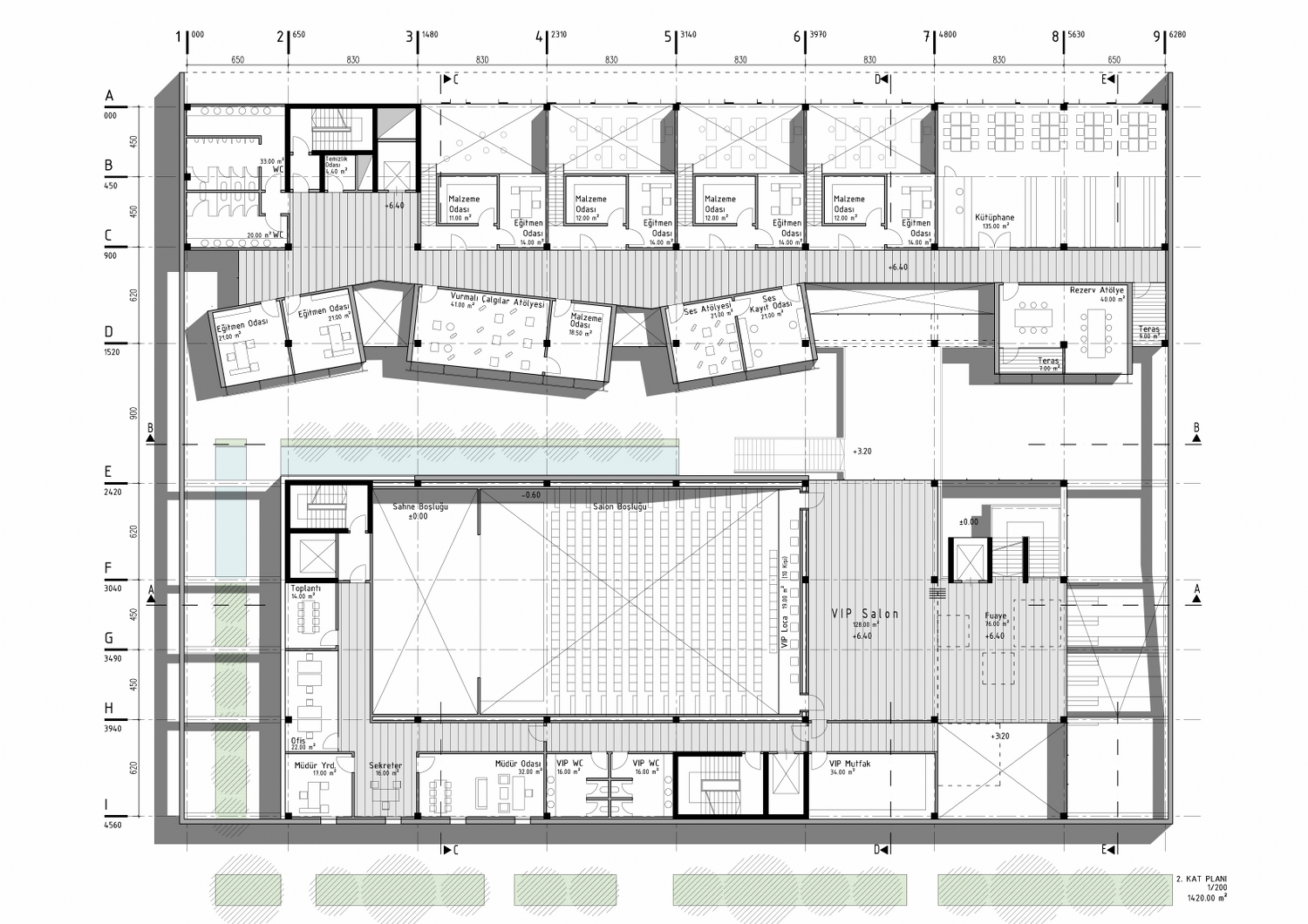
Katılımcı (SN Mimarlık), Şehitkamil Belediyesi Sanat Merkezi
Project Location: Gaziantep, Şehitkamil
Project Office: SN Mimarlık
Project Type: Cultural Center
Proje Tipi Grubu: Katılımcı
Tasarım Ekibi: Süleyman Akkaş, Nihal Şenkaya Akkaş
Yardımcı: Cihat Ömer Akgün, Aybüke Ülküseven