24/28
Paylaş
Resmi Orjinal Boyutunda Göster
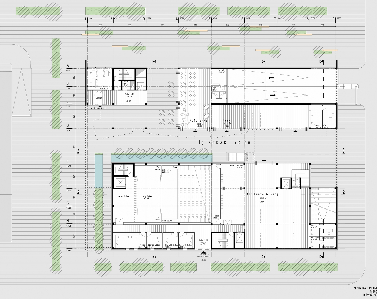
Katılımcı (SN Mimarlık), Şehitkamil Belediyesi Sanat Merkezi
Proje Yeri: Gaziantep, Şehitkamil
Proje Ofisi: SN Mimarlık
Proje Tipi: Kültür Merkezi
Proje Tipi Grubu: Katılımcı
Tasarım Ekibi: Süleyman Akkaş, Nihal Şenkaya Akkaş
Yardımcı: Cihat Ömer Akgün, Aybüke Ülküseven