11/20
Paylaş
Resmi Orjinal Boyutunda Göster
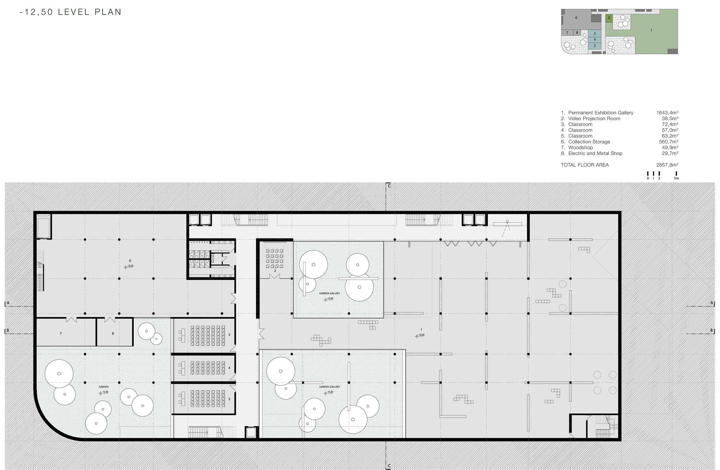
Mali Müzesi Ek Yapısı, (BUDA Mimarlık)
Proje Yeri: Lima , Peru
Proje Ofisi: Buda Mimarlık
Proje Tipi: Müze
Proje Tipi Grubu: Eşdeğer Mansiyon
Tasarım Ekibi: Burak Pelenk, Eda Yazkurt Pelenk, Dilara Demiralp, Damla İçyer, Tuğberk Kaan Nazlı, Kadir Berk Demirkan