13/20
Paylaş
Resmi Orjinal Boyutunda Göster
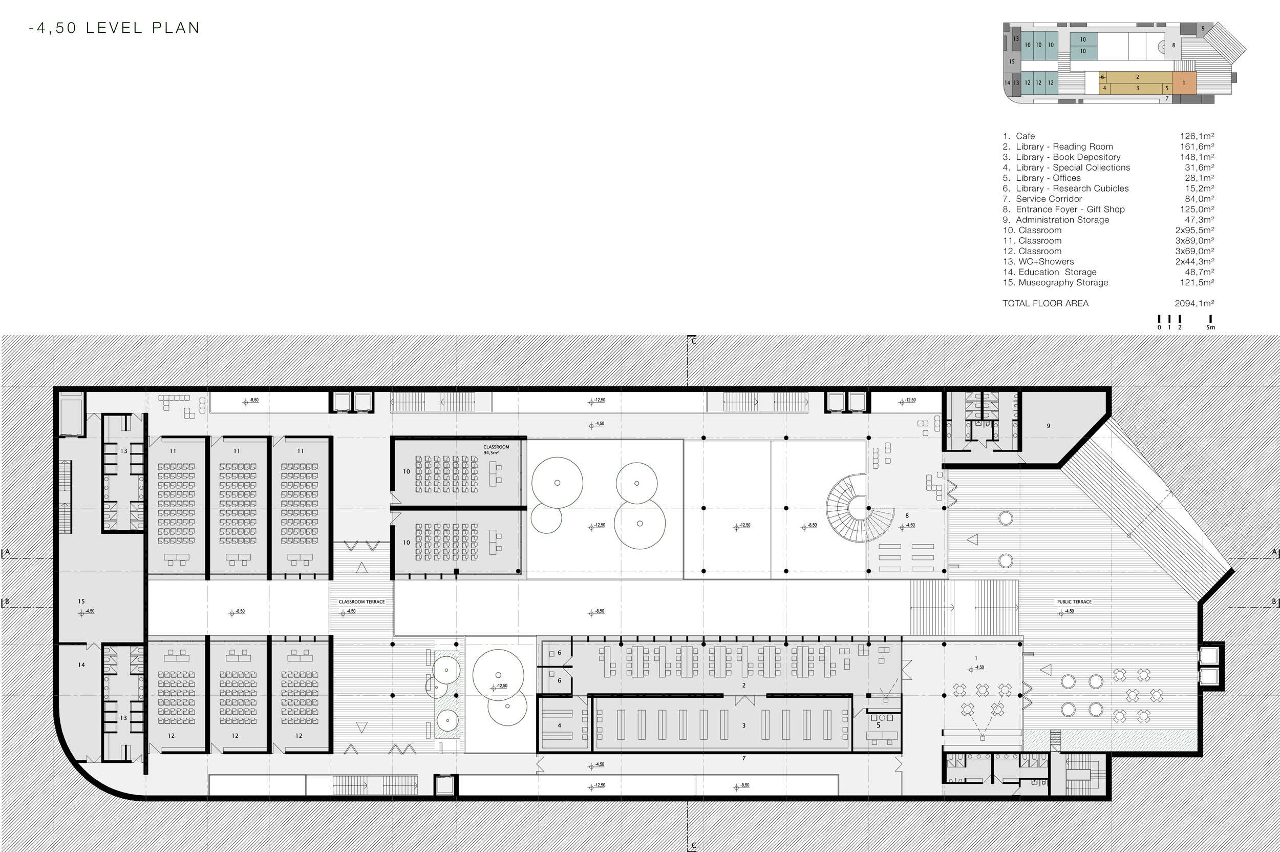
Mali Müzesi Ek Yapısı, (BUDA Mimarlık)
Project Location: Lima , Peru
Project Office: Buda Mimarlık
Project Type: Museum
Proje Tipi Grubu: Eşdeğer Mansiyon
Tasarım Ekibi: Burak Pelenk, Eda Yazkurt Pelenk, Dilara Demiralp, Damla İçyer, Tuğberk Kaan Nazlı, Kadir Berk Demirkan