22/44
Paylaş
Resmi Orjinal Boyutunda Göster
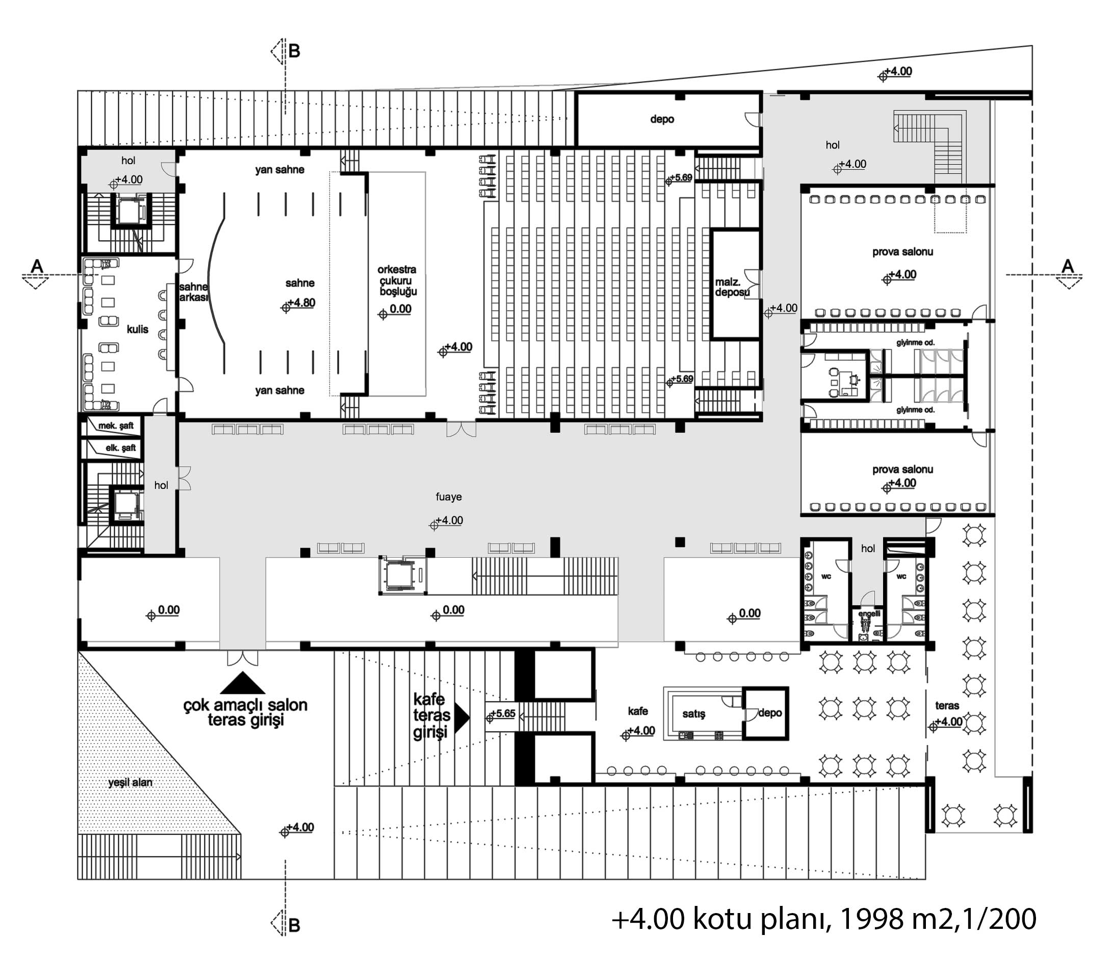
Katılımcı (Selim Senin), Şehitkamil Belediyesi Sanat Merkezi Ulusal Mimari Fikir Projesi Yarışması
Proje Yeri: Gaziantep
Proje Tipi: Kültür Merkezi
Proje Tipi Grubu: Katılımcı
Tasarım Ekibi: Selim Senin