25/44
Paylaş
Resmi Orjinal Boyutunda Göster
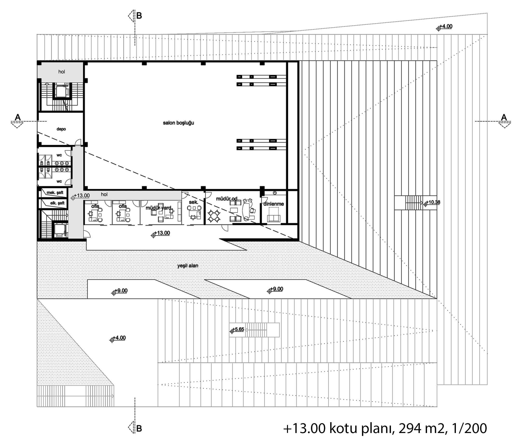
Katılımcı (Selim Senin), Şehitkamil Belediyesi Sanat Merkezi Ulusal Mimari Fikir Projesi Yarışması
Project Location: Gaziantep
Project Type: Cultural Center
Proje Tipi Grubu: Katılımcı
Tasarım Ekibi: Selim Senin