31/39
Paylaş
Resmi Orjinal Boyutunda Göster
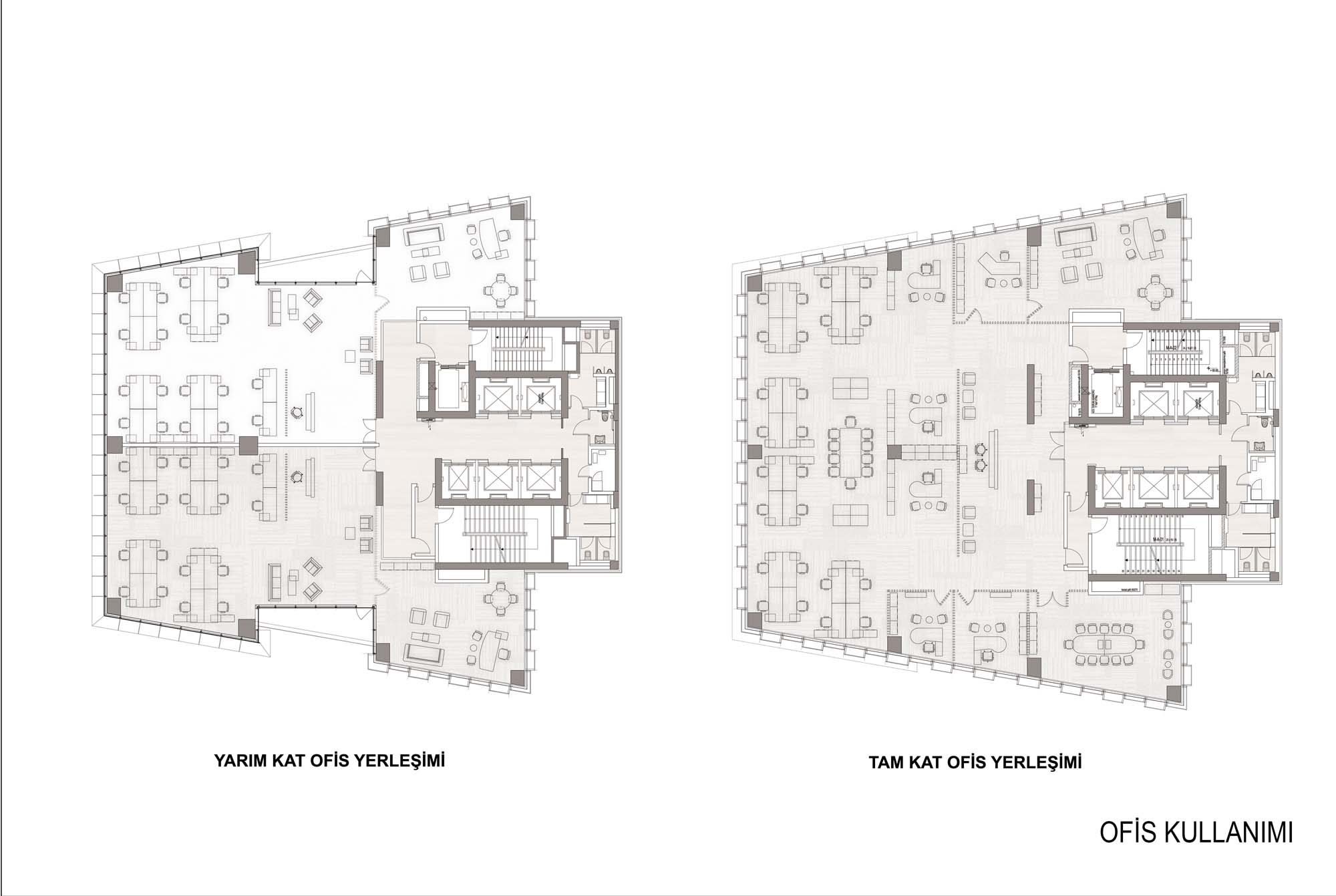
Mermerler Plaza
Project Location: İstanbul, Kadıköy
Project Office: Ergün Mimarlık
Project Type: Offices
Proje Tipi Grubu: Commercial
Tasarım Ekibi: Ender Ergün, Cavit Ergün, Eser Ergün, Dolunay Özcihan, Ceren Tuncer
Employer: Mermerler Holding
Peyzaj Mimarlığı: Spiga Peyzaj Proje Danışmanlık
Interior Architecture: Esat Özkan, Zeynep Ergün, Gizem Arslaner, Tuğba Özkan
Lighting Project: Lipom Aydınlatma
Structural Project: Fonksiyon Mühendislik
Mechanical Project: Dinamik Proje Mühendislik
Electrical Project: Enkom Mühendislik
Plumbing Project: Dinamik Proje Mühendislik
Fire Safety Consultant: Kazım Beceren
Photography: Cemal Emden
Construction Site Manager: Sedat Özkazanç
Project Start Date: 2011
Project End Date: 2013
Construction Start Date: 2013
Construction End Date: 2016
Building Plot Area: 5,500 m²
Total Construction Area: 32,000 m2