39/39
Paylaş
Resmi Orjinal Boyutunda Göster
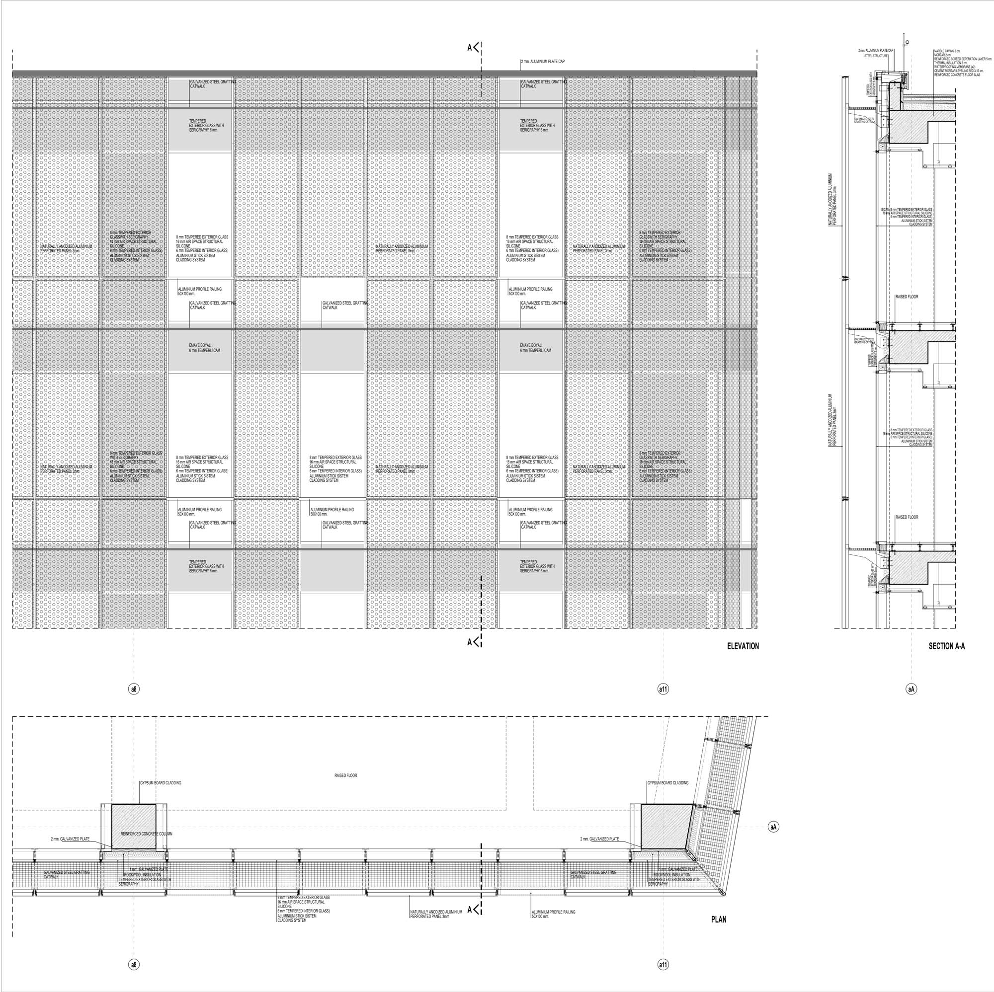
Mermerler Plaza
Proje Yeri: İstanbul, Kadıköy
Proje Ofisi: Ergün Mimarlık
Proje Tipi: Ofis
Proje Tipi Grubu: Ticari
Tasarım Ekibi: Ender Ergün, Cavit Ergün, Eser Ergün, Dolunay Özcihan, Ceren Tuncer
İşveren: Mermerler Holding
Peyzaj Mimarlığı: Spiga Peyzaj Proje Danışmanlık
İç Mekan Projesi: Esat Özkan, Zeynep Ergün, Gizem Arslaner, Tuğba Özkan
Aydınlatma Projesi: Lipom Aydınlatma
Statik Projesi: Fonksiyon Mühendislik
Mekanik Projesi: Dinamik Proje Mühendislik
Elektrik Projesi: Enkom Mühendislik
Tesisat Projesi: Dinamik Proje Mühendislik
Yangın Güvenlik Danışmanı: Kazım Beceren
Fotoğraf: Cemal Emden
Şantiye Yöneticisi: Sedat Özkazanç
Proje Başlangıç Yılı: 2011
Proje Bitiş Yılı: 2013
İnşaat Başlangıç Yılı: 2013
İnşaat Bitiş Yılı: 2016
Arsa Alanı: 5,500 m²
Toplam İnşaat Alanı: 32,000 m2