14/20
Paylaş
Resmi Orjinal Boyutunda Göster
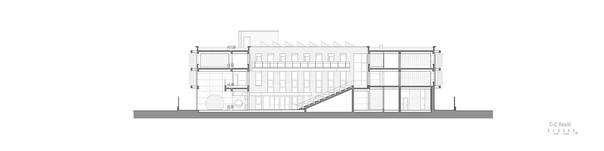
Alibeyköy Anadolu Lisesi
Project Location: Eyüpsultan, İstanbul
Project Office: Uygur Mimarlık
Project Type: High School
Proje Tipi Grubu: Eğitim
Tasarım Ekibi: Semra Uygur, Özcan Uygur
Employer: İstanbul Sismik Riskin Azaltılması ve Acil Durum Hazırlık Projesi (İSMEP)
Yardımcı: Eser Köken İşleyici, Zümral Aygüler Kartal, Sevda Özkan İmamoğlu
Ana Yüklenici: BS Mimarlık
Peyzaj Mimarlığı: Derya Duman, Kemal Özgür, Can Kubin
Structural Project: Dursun Özsaraç, Levent Aksaray
Mechanical Project: Bahri Türkmen
Electrical Project: Kemal Ovacık
Project Start Date: 2012
Project End Date: 2013
Construction Start Date: 2014
Construction End Date: 2015
Building Plot Area: 10,388 m2
Total Construction Area: 9,473 m2