15/20
Paylaş
Resmi Orjinal Boyutunda Göster
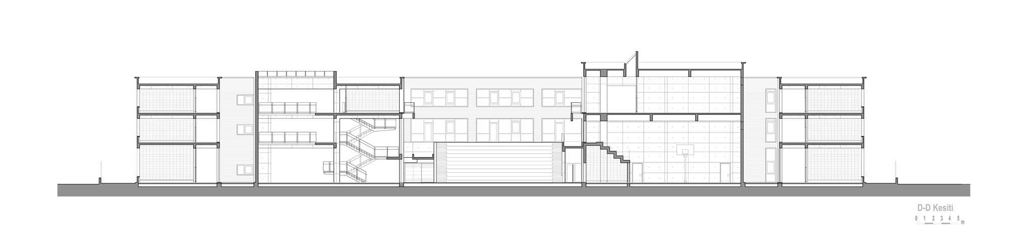
Alibeyköy Anadolu Lisesi
Proje Yeri: Eyüpsultan, İstanbul
Proje Ofisi: Uygur Mimarlık
Proje Tipi: Lise / Ortaöğretim
Proje Tipi Grubu: Eğitim
Tasarım Ekibi: Semra Uygur, Özcan Uygur
İşveren: İstanbul Sismik Riskin Azaltılması ve Acil Durum Hazırlık Projesi (İSMEP)
Yardımcı: Eser Köken İşleyici, Zümral Aygüler Kartal, Sevda Özkan İmamoğlu
Ana Yüklenici: BS Mimarlık
Peyzaj Mimarlığı: Derya Duman, Kemal Özgür, Can Kubin
Statik Projesi: Dursun Özsaraç, Levent Aksaray
Mekanik Projesi: Bahri Türkmen
Elektrik Projesi: Kemal Ovacık
Proje Başlangıç Yılı: 2012
Proje Bitiş Yılı: 2013
İnşaat Başlangıç Yılı: 2014
İnşaat Bitiş Yılı: 2015
Arsa Alanı: 10,388 m2
Toplam İnşaat Alanı: 9,473 m2