12/17
Paylaş
Resmi Orjinal Boyutunda Göster
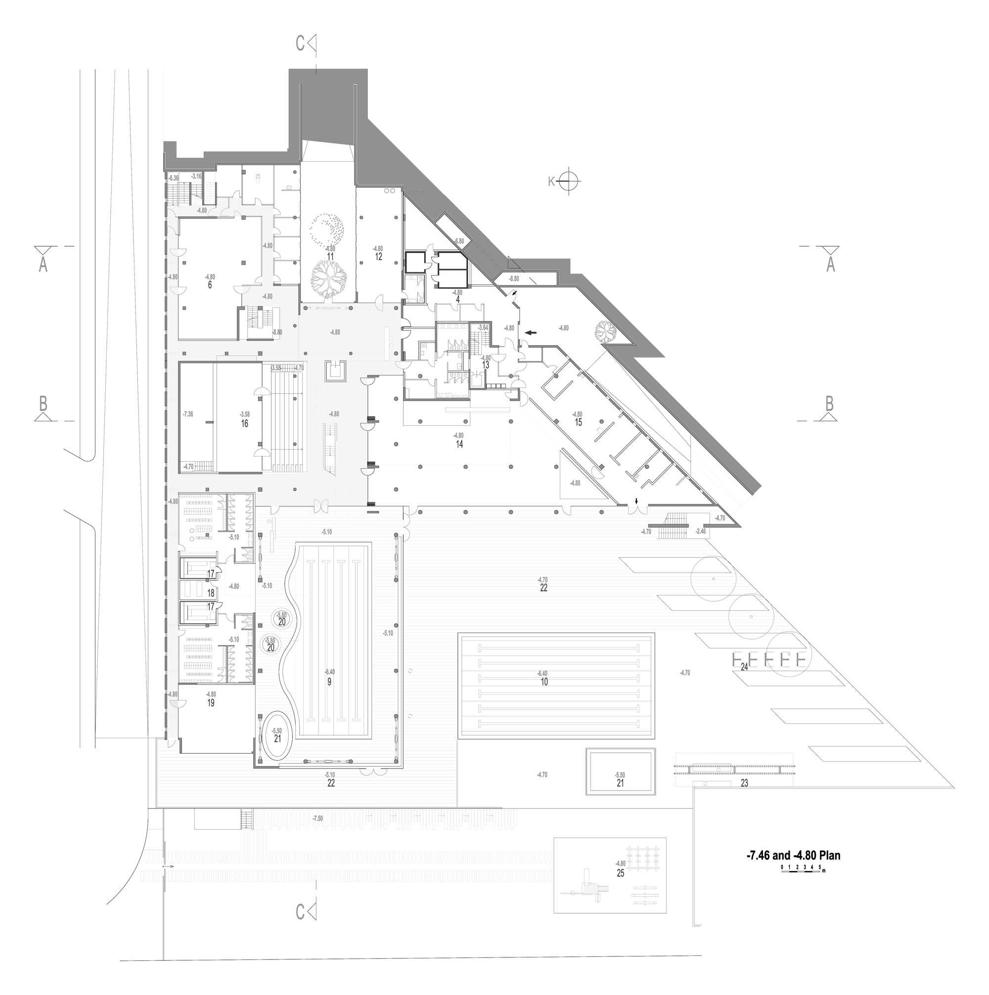
Kolej-IN TED Ankara Koleji Mezunları Derneği Sosyal Tesisi
Proje Yeri: Ankara, İncek
Proje Ofisi: Uygur Mimarlık
Proje Tipi: Sosyal Tesis
Tasarım Ekibi: Semra Uygur, Özcan Uygur
İşveren: TED Ankara Koleji Vakfı
Yardımcı: Güliz Erkan, Ayhan Abanozcu, Necati Seren, Eser Köken İşleyici, Evrim Özlem Kale, Aslı Kaya
Ana Yüklenici: Yapı-Tek İnşaat
Peyzaj Mimarlığı: Semra Uygur, Özcan Uygur, Can Kubin, Derya Duman
İç Mekan Projesi: Semra Uygur, Özcan Uygur
Statik Projesi: Danyal Kubin
Mekanik Projesi: Bahri Türkmen
Elektrik Projesi: Kemal Ovacık
Fotoğraf: Cemal Emden
Proje Başlangıç Yılı: 2006
Proje Bitiş Yılı: 2007
İnşaat Başlangıç Yılı: 2008
İnşaat Bitiş Yılı: 2012
Toplam İnşaat Alanı: 7,683 m²