17/17
Paylaş
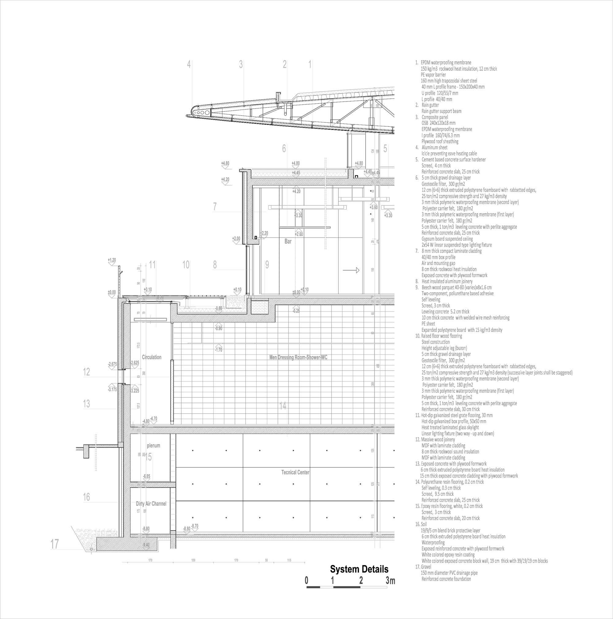
Resmi Orjinal Boyutunda Göster
Kolej-IN TED Ankara Koleji Mezunları Derneği Sosyal Tesisi
Project Location: Ankara, İncek
Project Office: Uygur Mimarlık
Project Type: Social Facility
Tasarım Ekibi: Semra Uygur, Özcan Uygur
Employer: TED Ankara Koleji Vakfı
Yardımcı: Güliz Erkan, Ayhan Abanozcu, Necati Seren, Eser Köken İşleyici, Evrim Özlem Kale, Aslı Kaya
Ana Yüklenici: Yapı-Tek İnşaat
Peyzaj Mimarlığı: Semra Uygur, Özcan Uygur, Can Kubin, Derya Duman
Interior Architecture: Semra Uygur, Özcan Uygur
Structural Project: Danyal Kubin
Mechanical Project: Bahri Türkmen
Electrical Project: Kemal Ovacık
Photography: Cemal Emden
Project Start Date: 2006
Project End Date: 2007
Construction Start Date: 2008
Construction End Date: 2012
Total Construction Area: 7,683 m²