17/22
Paylaş
Resmi Orjinal Boyutunda Göster
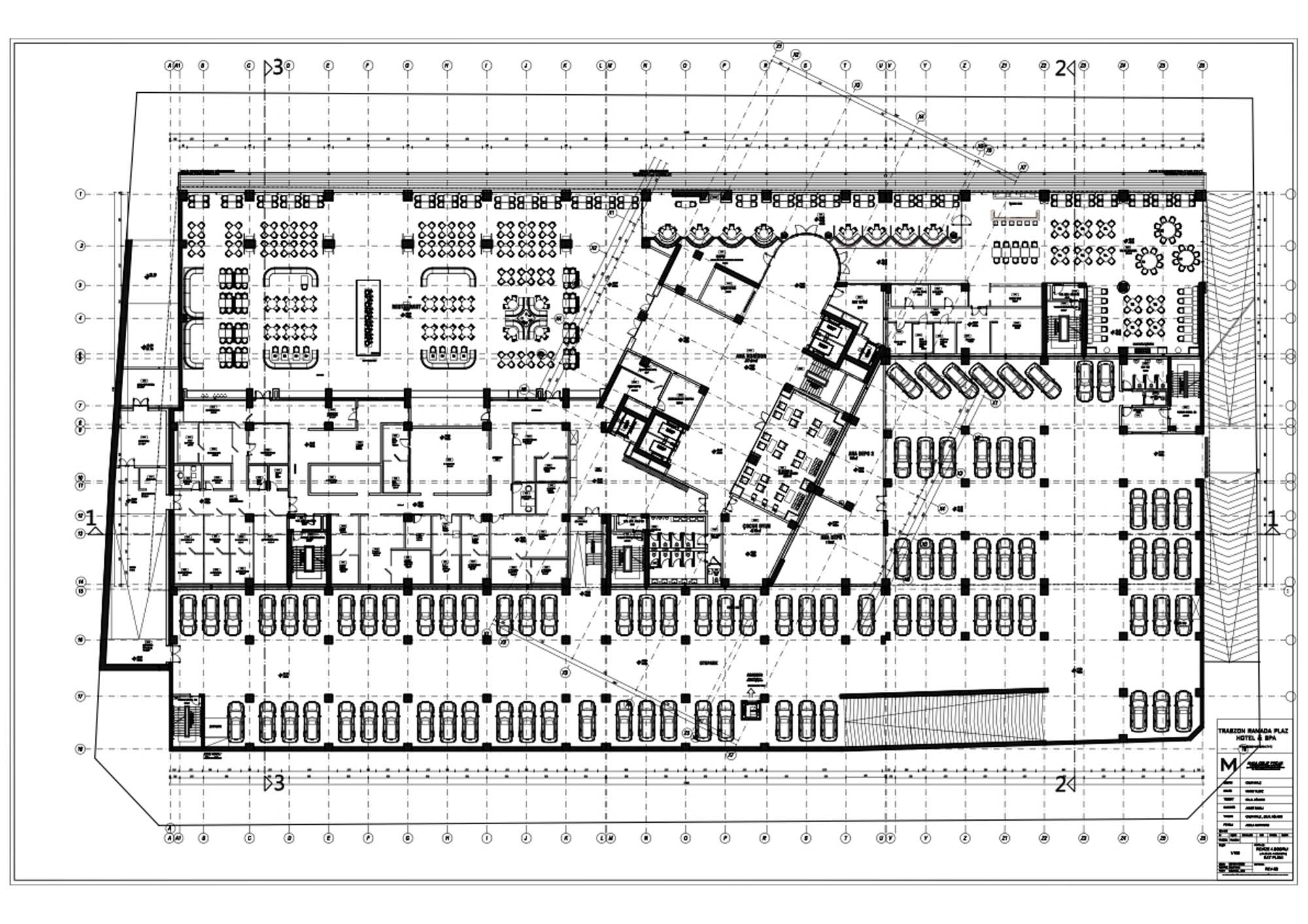
Ramada Plaza Trabzon Hotels and Spa
Proje Yeri: Trabzon
Proje Ofisi: Anka Grup Proje
Proje Tipi: Otel / Motel
Proje Tipi Grubu: Konaklama
Tasarım Ekibi: Onur Kılıç, Günseli Gebeş, Muzaffer Gebeş
İşveren: All Rubeann Grup
Yardımcı: Didem Önder, Abdullah Yıldırım, Aybike Özkan, Derya Atik
Ana Yüklenici: Mc Başaran Otelcilik ve Turizm
Peyzaj Mimarlığı: Almila Nur Yavru
İç Mekan Projesi: aRTeBeL Decoration Style
Konsept Tasarımı: Anka Grup Proje, G5 Mimarlık
Uygulama Projesi: Anka Grup Proje
Statik Projesi: Anka Grup Proje
Mekanik Projesi: Anka Grup Proje
Elektrik Projesi: Anka Grup Proje
Tesisat Projesi: Anka Grup Proje
Çelik Projesi: Anka Grup Proje
Altyapı Projesi: Anka Grup Proje
Yangın Tahliye Projesi: Anka Grup Proje
Yangın Güvenlik Danışmanı: Onur Kılıç
Proje Başlangıç Yılı: 2011
Proje Bitiş Yılı: 2012
İnşaat Başlangıç Yılı: 2012
İnşaat Bitiş Yılı: 2015
Arsa Alanı: 9,750 m2
Toplam İnşaat Alanı: 45,000 m2