18/22
Paylaş
Resmi Orjinal Boyutunda Göster
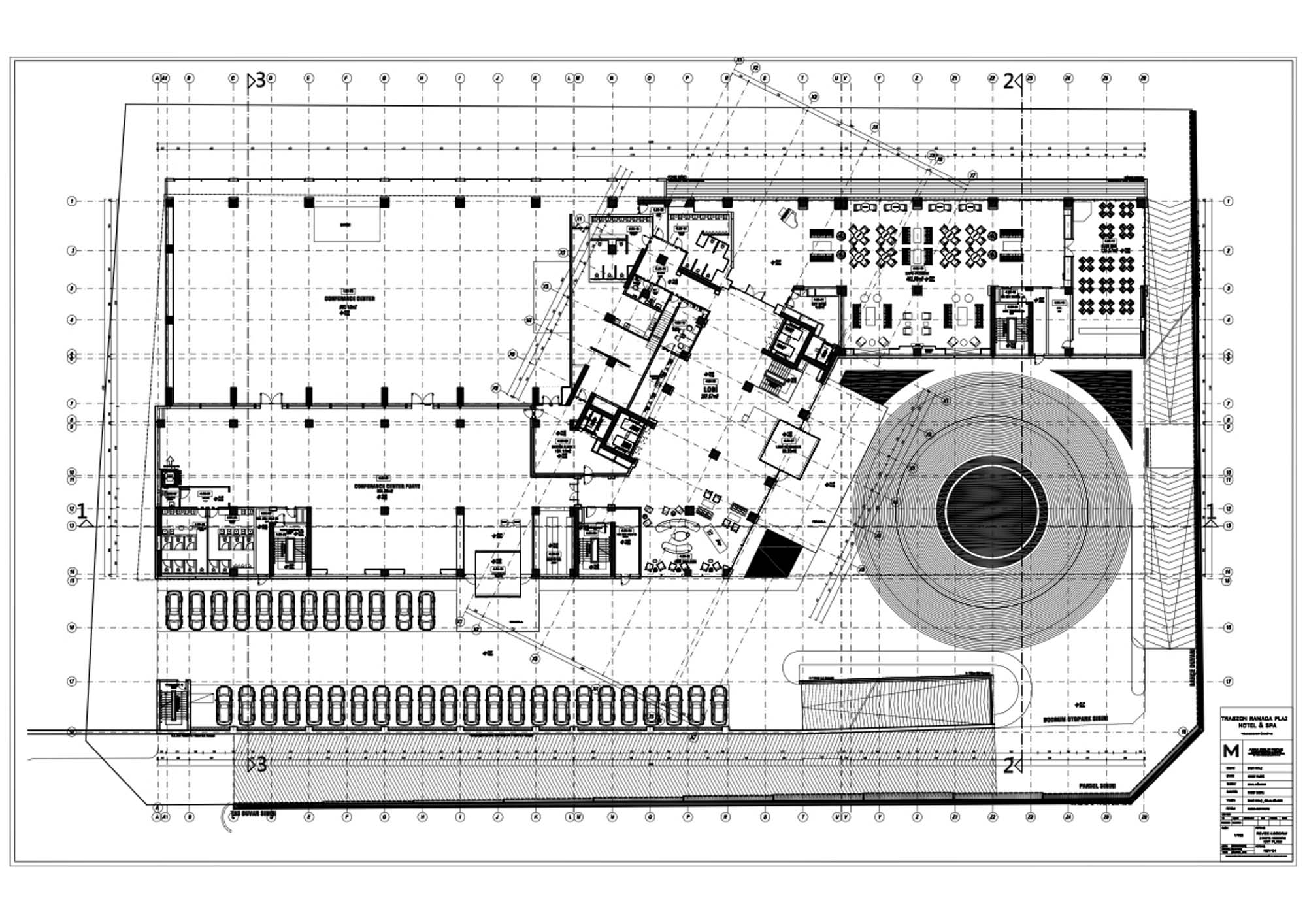
Ramada Plaza Trabzon Hotels and Spa
Project Location: Trabzon
Project Office: Anka Grup Proje
Project Type: Hotel / Motel
Proje Tipi Grubu: Konaklama
Tasarım Ekibi: Onur Kılıç, Günseli Gebeş, Muzaffer Gebeş
Employer: All Rubeann Grup
Yardımcı: Didem Önder, Abdullah Yıldırım, Aybike Özkan, Derya Atik
Ana Yüklenici: Mc Başaran Otelcilik ve Turizm
Peyzaj Mimarlığı: Almila Nur Yavru
Interior Architecture: aRTeBeL Decoration Style
Concept Design: Anka Grup Proje, G5 Mimarlık
Construction Drawings: Anka Grup Proje
Structural Project: Anka Grup Proje
Mechanical Project: Anka Grup Proje
Electrical Project: Anka Grup Proje
Plumbing Project: Anka Grup Proje
Çelik Projesi: Anka Grup Proje
Altyapı Projesi: Anka Grup Proje
Yangın Tahliye Projesi: Anka Grup Proje
Fire Safety Consultant: Onur Kılıç
Project Start Date: 2011
Project End Date: 2012
Construction Start Date: 2012
Construction End Date: 2015
Building Plot Area: 9,750 m2
Total Construction Area: 45,000 m2