20/36
Paylaş
Resmi Orjinal Boyutunda Göster
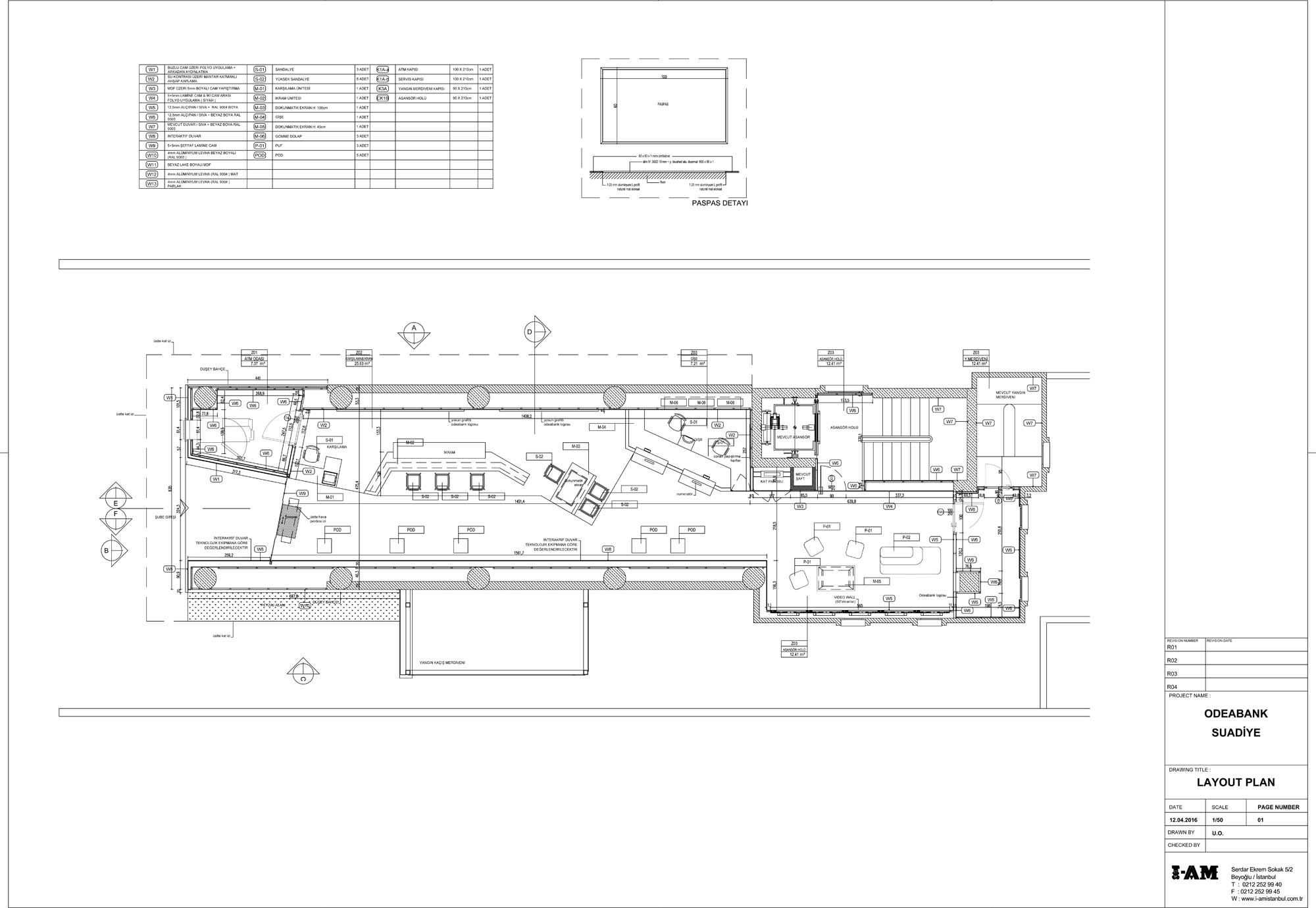
Odeabank Suadiye Şubesi
Proje Yeri: Kadıköy, İstanbul
Proje Ofisi: I-AM
Proje Tipi: Ofis
Proje Tipi Grubu: Ticari
Tasarım Ekibi: Emre Kuzlu, Ertuğrul Yurdakul, Pınar Bilgin Ünlü, Başar Bostancı, Vural Armutçuoğlu
İşveren: Odeabank
Yardımcı: İlknur Demirlenk, Ulya Köseoğlu
Ana Yüklenici: Barış İnşaat
Proje Yöneticisi: Deniz Tuncer, Atay Güler
Uygulama Projesi: I-AM, Barış İnşaat
Statik Projesi: Barış İnşaat
Mekanik Projesi: Zeta Mühendislik
Elektrik Projesi: Lineer Mühendislik
Tesisat Projesi: Zeta Mühendislik
Mimari Mesleki Kontrollük: Vural Armutçuoğlu
Şantiye Yöneticisi: Songül Gül
Proje Başlangıç Yılı: 2016
Proje Bitiş Yılı: 2016
İnşaat Başlangıç Yılı: 2016
İnşaat Bitiş Yılı: 2016
Arsa Alanı: 621 m2
Toplam İnşaat Alanı: 1,590 m²