32/36
Paylaş
Resmi Orjinal Boyutunda Göster
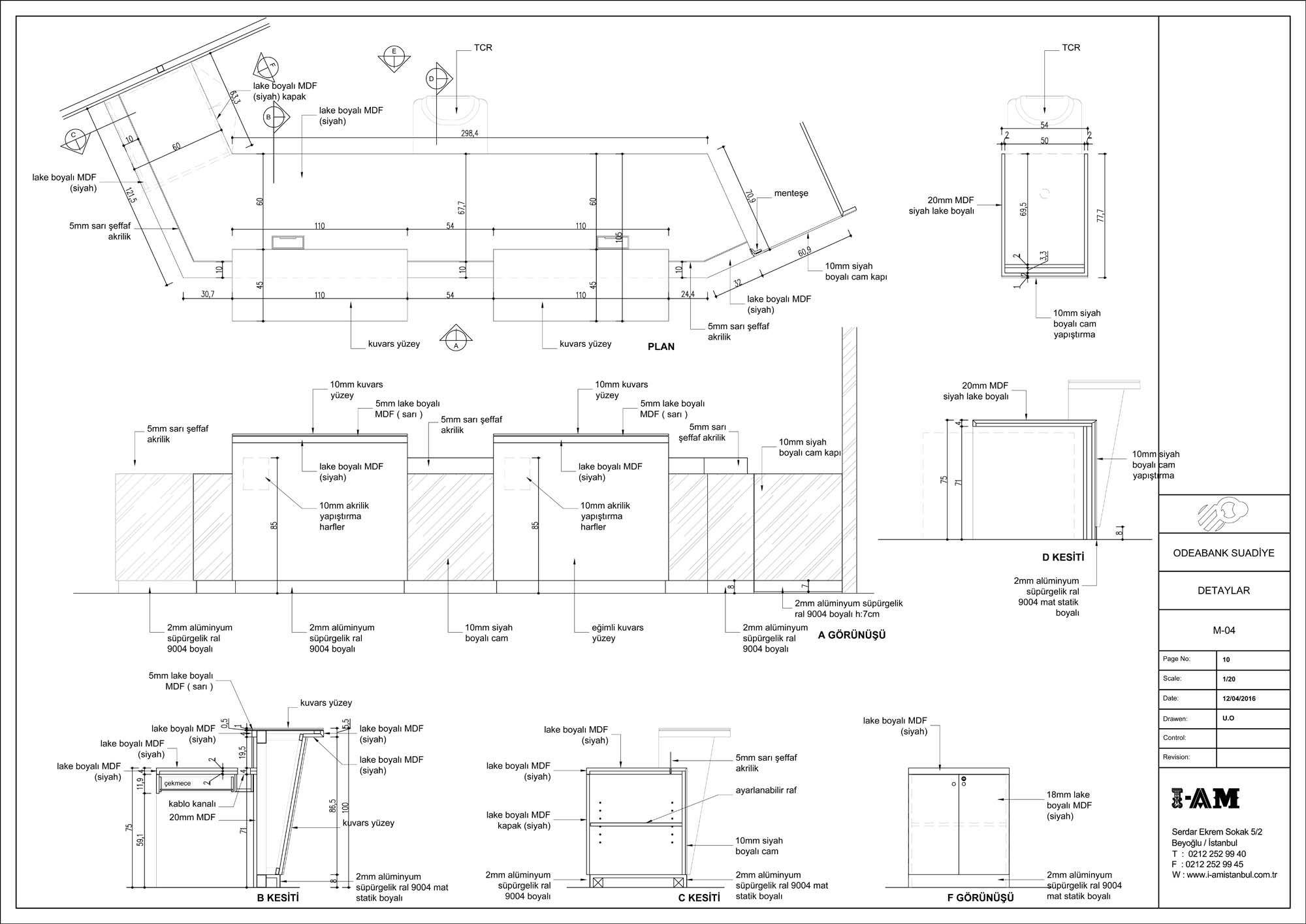
Odeabank Suadiye Şubesi
Project Location: Kadıköy, İstanbul
Project Office: I-AM
Project Type: Offices
Proje Tipi Grubu: Commercial
Tasarım Ekibi: Emre Kuzlu, Ertuğrul Yurdakul, Pınar Bilgin Ünlü, Başar Bostancı, Vural Armutçuoğlu
Employer: Odeabank
Yardımcı: İlknur Demirlenk, Ulya Köseoğlu
Ana Yüklenici: Barış İnşaat
Projcet Manager: Deniz Tuncer, Atay Güler
Construction Drawings: I-AM, Barış İnşaat
Structural Project: Barış İnşaat
Mechanical Project: Zeta Mühendislik
Electrical Project: Lineer Mühendislik
Plumbing Project: Zeta Mühendislik
Architectural Supervision: Vural Armutçuoğlu
Construction Site Manager: Songül Gül
Project Start Date: 2016
Project End Date: 2016
Construction Start Date: 2016
Construction End Date: 2016
Building Plot Area: 621 m2
Total Construction Area: 1,590 m²