10/12
Paylaş
Resmi Orjinal Boyutunda Göster
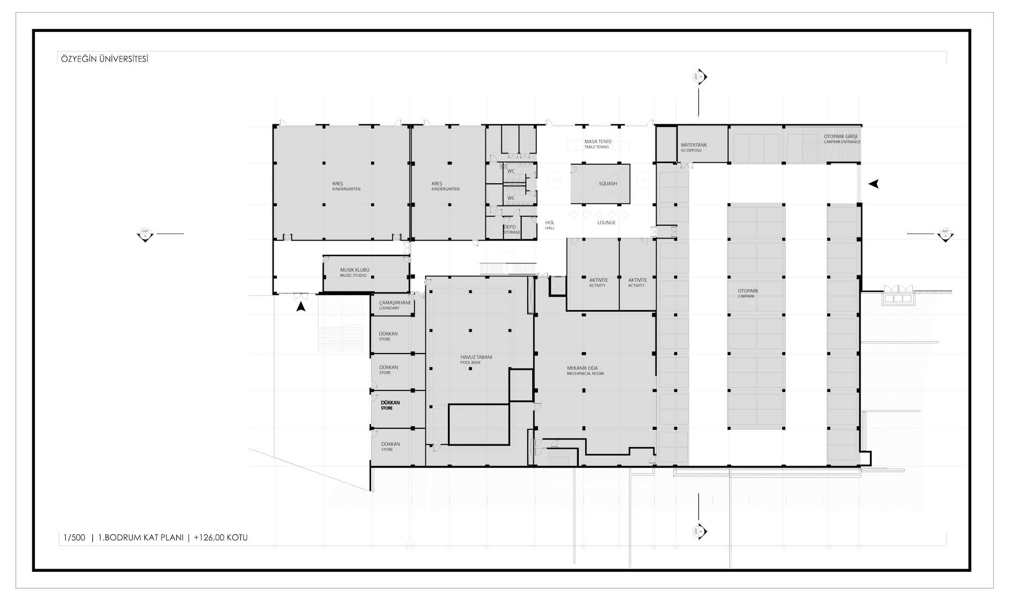
Özyeğin Üniversitesi Spor Merkezi
Project Location: Çekmeköy, İstanbul
Project Office: BG Architects
Project Type: Sports Hall
Tasarım Ekibi: Nuran Eryeler, Gülnar Ocakdan, Bülent Ergin Güngör, Barış Başat, Emre Gürsoy
Employer: Özyeğin Üniversitesi
Yardımcı: Şila Siva, Veciye Öztürk, Ece Şeref, Eylem Yılmaz, Funda Doğru, Ergün Kutlutürk
Peyzaj Mimarlığı: DS Mimarlık
Structural Project: Emir Mühendislik
Mechanical Project: Civa Mühendislik
Electrical Project: Latek İnşaat Elektrik Proje
Photography: Koral Oral
Project Start Date: 2010
Project End Date: 2011
Construction Start Date: 2011
Construction End Date: 2012
Building Plot Area: 72.100 m²
Total Construction Area: 15.600 m²