11/12
Paylaş
Resmi Orjinal Boyutunda Göster
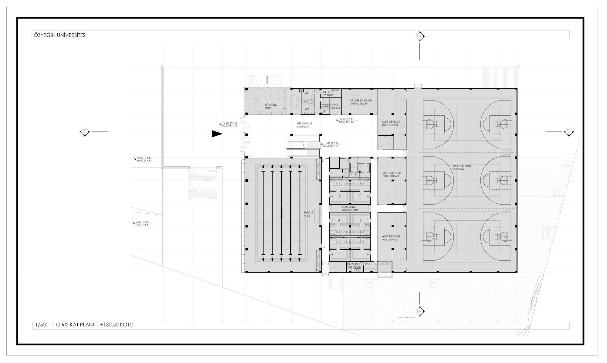
Özyeğin Üniversitesi Spor Merkezi
Proje Yeri: Çekmeköy, İstanbul
Proje Ofisi: BG Architects
Proje Tipi: Spor Salonu
Tasarım Ekibi: Nuran Eryeler, Gülnar Ocakdan, Bülent Ergin Güngör, Barış Başat, Emre Gürsoy
İşveren: Özyeğin Üniversitesi
Yardımcı: Şila Siva, Veciye Öztürk, Ece Şeref, Eylem Yılmaz, Funda Doğru, Ergün Kutlutürk
Peyzaj Mimarlığı: DS Mimarlık
Statik Projesi: Emir Mühendislik
Mekanik Projesi: Civa Mühendislik
Elektrik Projesi: Latek İnşaat Elektrik Proje
Fotoğraf: Koral Oral
Proje Başlangıç Yılı: 2010
Proje Bitiş Yılı: 2011
İnşaat Başlangıç Yılı: 2011
İnşaat Bitiş Yılı: 2012
Arsa Alanı: 72.100 m²
Toplam İnşaat Alanı: 15.600 m²