18/26
Paylaş
Resmi Orjinal Boyutunda Göster
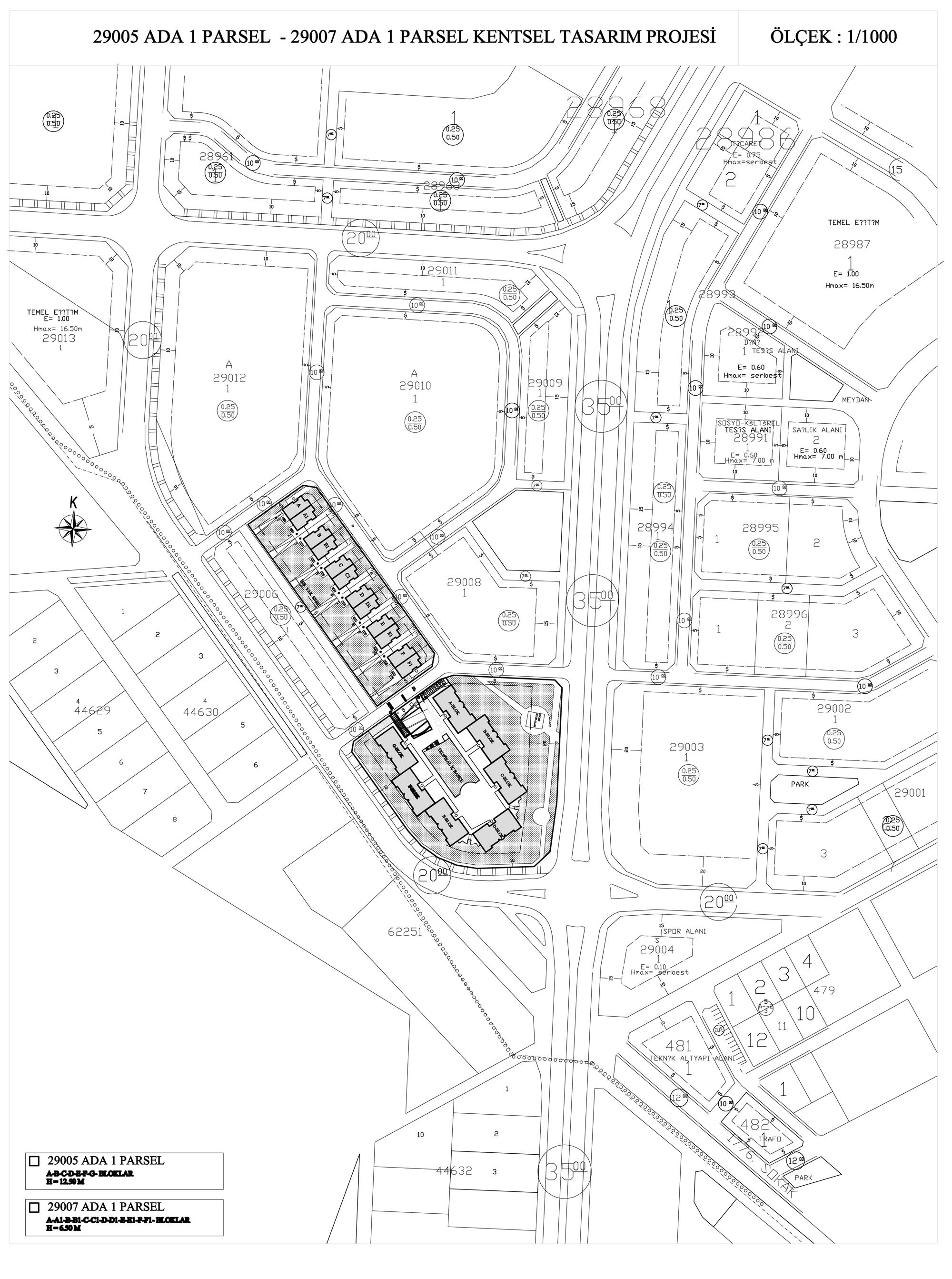
Beytepe Restorium
Project Location: Çankaya, Ankara
Project Office: 2 Mimarlık
Project Type: Housing Complex
Proje Tipi Grubu: Konut
Tasarım Ekibi: Murat Uslu, Mahmut Tümer
Employer: Keklikoğlu Gayrimenkul
Yardımcı: İrfan Bülbül, Hakan Bülbül
Ana Yüklenici: Keklikoğlu Gayrimenkul
Peyzaj Mimarlığı: Ada Peyzaj, Nurcan Önen
Interior Architecture: Mahmut Tümer
Projcet Manager: Murat Uslu
Concept Design: Murat Uslu, Mahmut Tümer
Grafik Tasarım: Ajans Branda, Erhan Aral
Structural Project: Vb Teknik, Volkan Bülbül
Mechanical Project: Lesse, Levent Sırakaya
Electrical Project: Denge Mühendislik, İsmail Yalçın
Plumbing Project: Lesse, Levent Sırakaya
Çelik Projesi: Kayen, Oğuzhan Erdem
Altyapı Projesi: Ensari, Mehmet Ensari
Model: Boyut Maket, Mehmet Sel
Architectural Supervision: Mahmut Tümer
Project Start Date: 2011
Project End Date: 2012
Construction Start Date: 2012
Construction End Date: 2016
Building Plot Area: 21,000 m2
Total Construction Area: 27,000 m2