20/26
Paylaş
Resmi Orjinal Boyutunda Göster
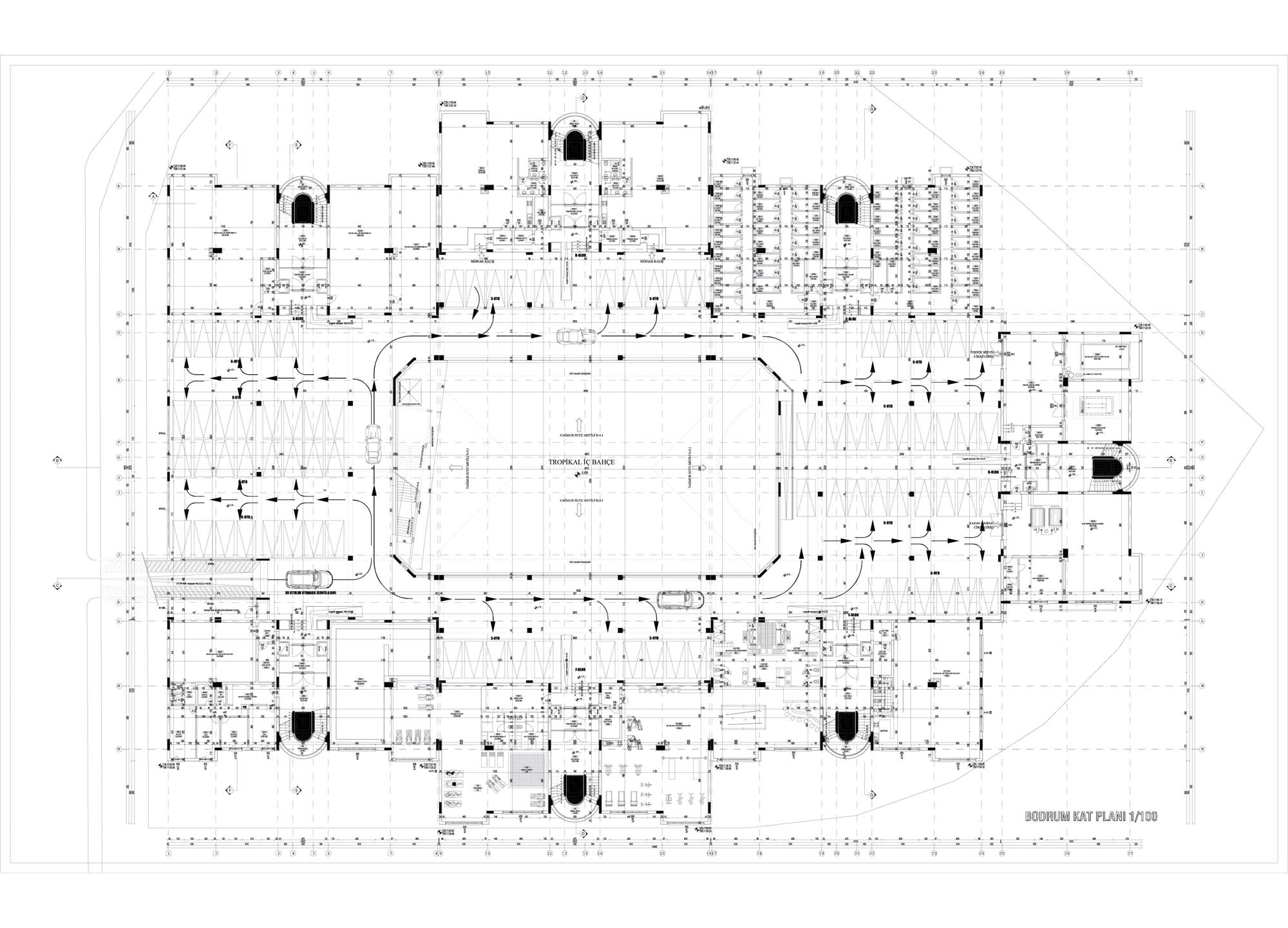
Beytepe Restorium
Proje Yeri: Çankaya, Ankara
Proje Ofisi: 2 Mimarlık
Proje Tipi: Konut Sitesi / Grubu
Proje Tipi Grubu: Konut
Tasarım Ekibi: Murat Uslu, Mahmut Tümer
İşveren: Keklikoğlu Gayrimenkul
Yardımcı: İrfan Bülbül, Hakan Bülbül
Ana Yüklenici: Keklikoğlu Gayrimenkul
Peyzaj Mimarlığı: Ada Peyzaj, Nurcan Önen
İç Mekan Projesi: Mahmut Tümer
Proje Yöneticisi: Murat Uslu
Konsept Tasarımı: Murat Uslu, Mahmut Tümer
Grafik Tasarım: Ajans Branda, Erhan Aral
Statik Projesi: Vb Teknik, Volkan Bülbül
Mekanik Projesi: Lesse, Levent Sırakaya
Elektrik Projesi: Denge Mühendislik, İsmail Yalçın
Tesisat Projesi: Lesse, Levent Sırakaya
Çelik Projesi: Kayen, Oğuzhan Erdem
Altyapı Projesi: Ensari, Mehmet Ensari
Maket: Boyut Maket, Mehmet Sel
Mimari Mesleki Kontrollük: Mahmut Tümer
Proje Başlangıç Yılı: 2011
Proje Bitiş Yılı: 2012
İnşaat Başlangıç Yılı: 2012
İnşaat Bitiş Yılı: 2016
Arsa Alanı: 21,000 m2
Toplam İnşaat Alanı: 27,000 m2