51/72
Paylaş
Resmi Orjinal Boyutunda Göster
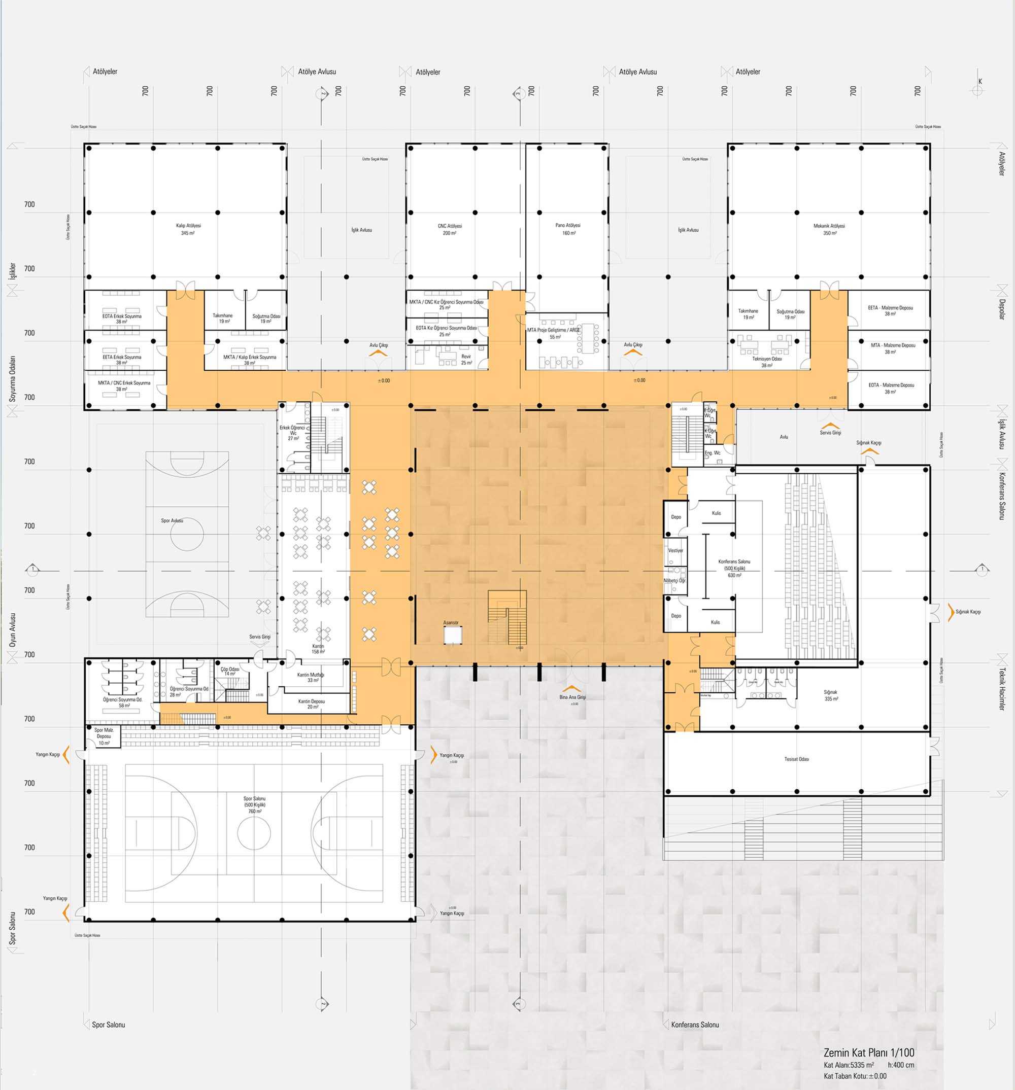
Özel İAOSB Nedim Uysal Mesleki ve Teknik Anadolu Lisesi
Proje Yeri: Çiğli, İzmir
Proje Ofisi: M artı D Mimarlık
Proje Tipi: Lise / Ortaöğretim
Proje Tipi Grubu: Eğitim
Tasarım Ekibi: Dürrin Süer, Metin Kılıç
İşveren: İzmir Atatürk Organize Sanayi Bölgesi Yönetimi
Danışman: Deniz Güner
Yardımcı: Merih Feza Yıldırım, Serdar Uslubaş, Ali Can Helvacıoğlu, Damla Duru
Ana Yüklenici: FGC İnşaat
Statik Projesi: Cemal Coşak, Mustafa Şahin
Mekanik Projesi: Ekrem Evren
Elektrik Projesi: Namık Onmuş
Maket: Mak3d
Fotoğraf: Zeren + Mehmet Yasa Photography
Mimari Mesleki Kontrollük: Metin Kılıç
Proje Başlangıç Yılı: 2012
Proje Bitiş Yılı: 2012
İnşaat Başlangıç Yılı: 2014
İnşaat Bitiş Yılı: 2016
Arsa Alanı: 13,749 m2
Toplam İnşaat Alanı: 13,697 m2