54/72
Paylaş
Resmi Orjinal Boyutunda Göster
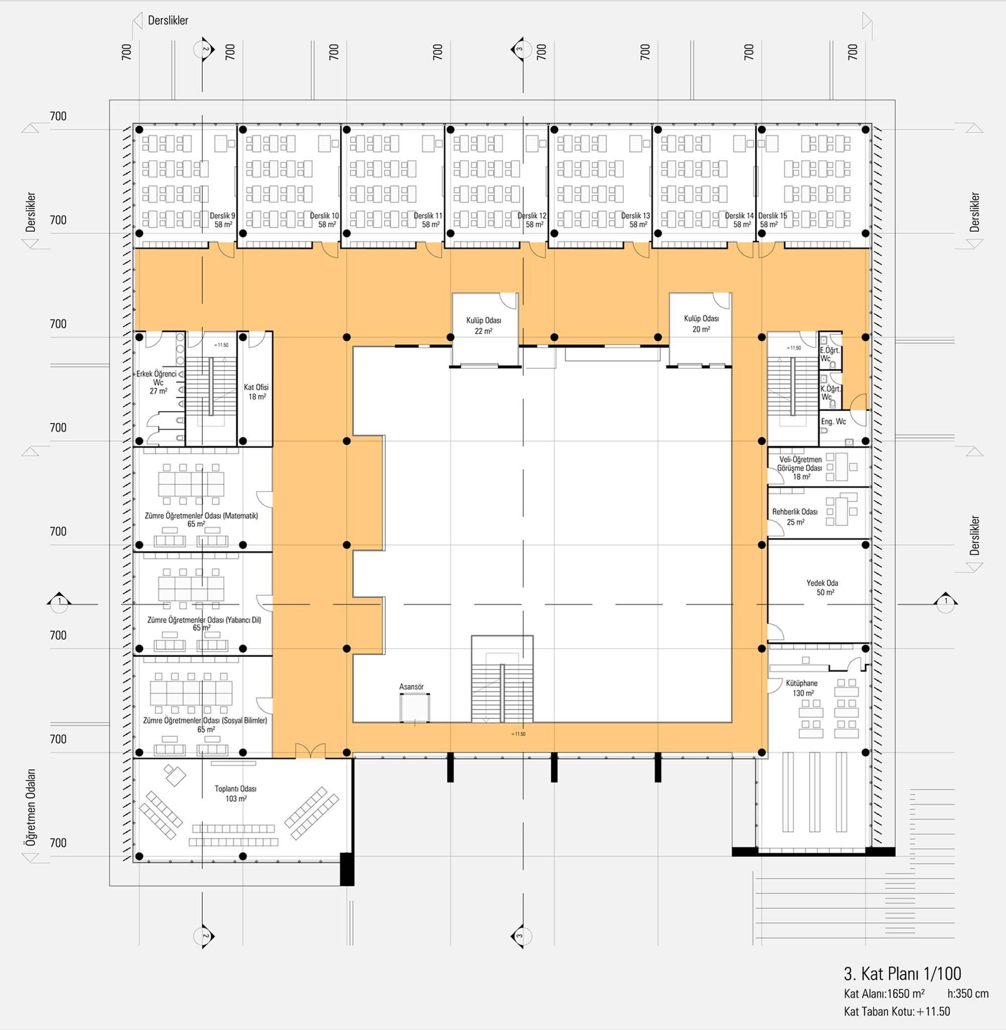
Özel İAOSB Nedim Uysal Mesleki ve Teknik Anadolu Lisesi
Project Location: Çiğli, İzmir
Project Office: M artı D Mimarlık
Project Type: High School
Proje Tipi Grubu: Eğitim
Tasarım Ekibi: Dürrin Süer, Metin Kılıç
Employer: İzmir Atatürk Organize Sanayi Bölgesi Yönetimi
Consultant: Deniz Güner
Yardımcı: Merih Feza Yıldırım, Serdar Uslubaş, Ali Can Helvacıoğlu, Damla Duru
Ana Yüklenici: FGC İnşaat
Structural Project: Cemal Coşak, Mustafa Şahin
Mechanical Project: Ekrem Evren
Electrical Project: Namık Onmuş
Model: Mak3d
Photography: Zeren + Mehmet Yasa Photography
Architectural Supervision: Metin Kılıç
Project Start Date: 2012
Project End Date: 2012
Construction Start Date: 2014
Construction End Date: 2016
Building Plot Area: 13,749 m2
Total Construction Area: 13,697 m2