12/16
Paylaş
Resmi Orjinal Boyutunda Göster
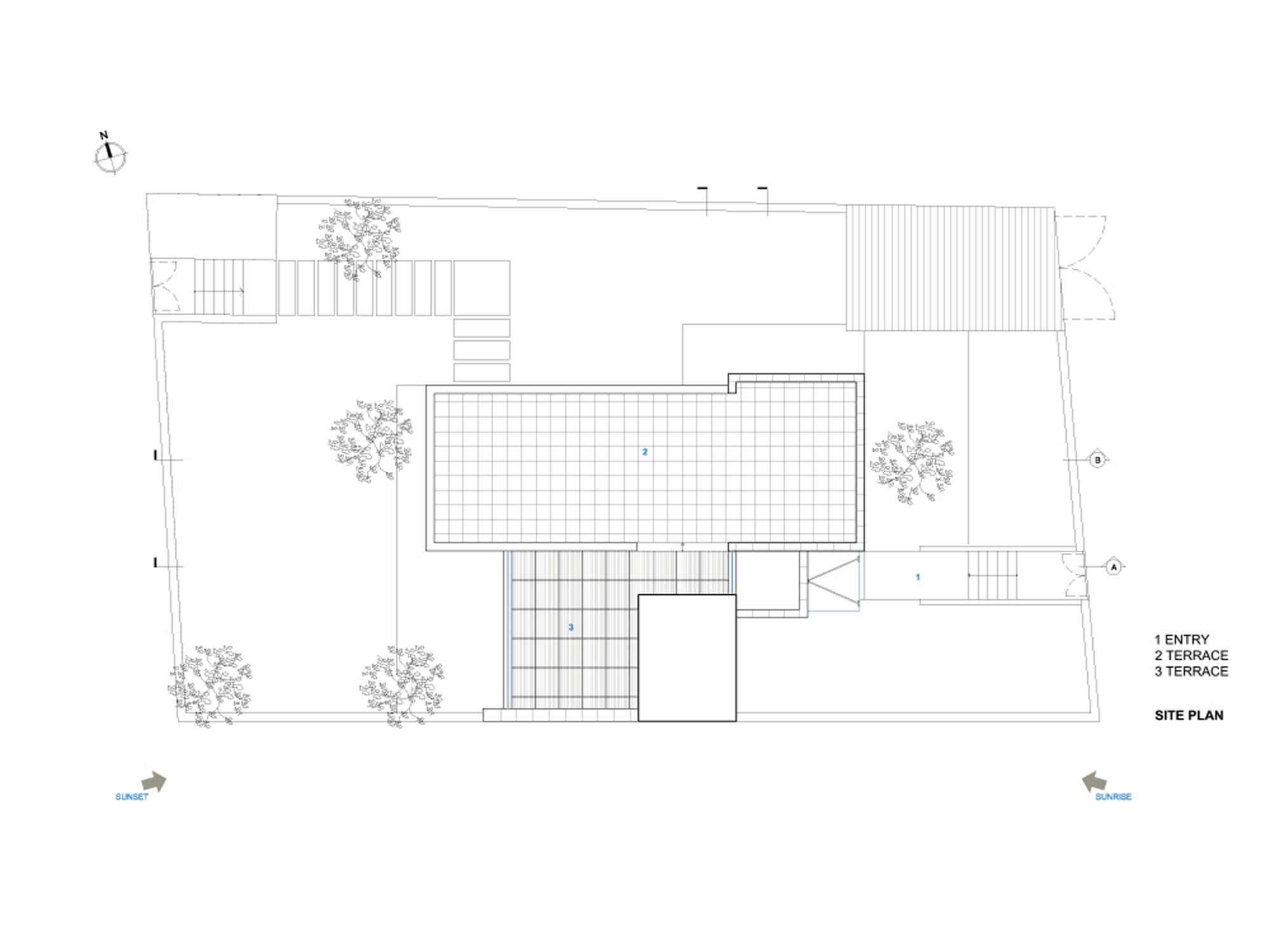
Villa Ek Seferihisar
Proje Yeri: Seferihisar, İzmir
Proje Ofisi: CKMY Architects
Proje Tipi: Tek Ev / Villa
Proje Tipi Grubu: Konut
Tasarım Ekibi: Can Kendir, İpek Akgöz, Mert Yılmaz, Merve Aşçıoğlu
Mimari Proje Ekibi: Can Kendir, Işıl Sipal, Mert Yılmaz
Ana Yüklenici: Işıl Sipal
Proje Yöneticisi: Işıl Sipal
Proje Başlangıç Yılı: 2014
Proje Bitiş Yılı: 2016
İnşaat Başlangıç Yılı: 2015
İnşaat Bitiş Yılı: 2016
Arsa Alanı: 800 m2
Toplam İnşaat Alanı: 380 m²