13/16
Paylaş
Resmi Orjinal Boyutunda Göster
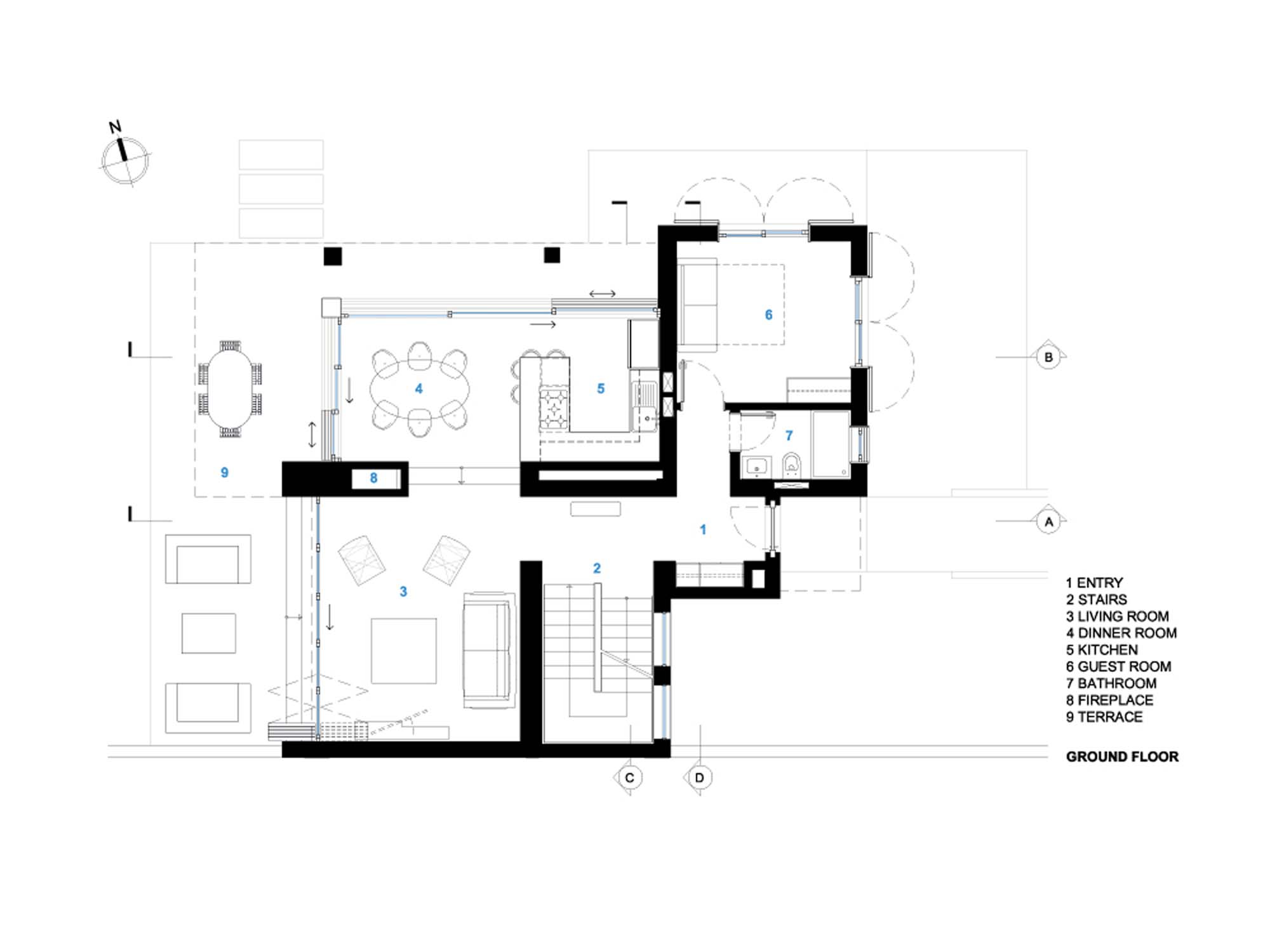
Villa Ek Seferihisar
Project Location: Seferihisar, İzmir
Project Office: CKMY Architects
Project Type: Single House
Proje Tipi Grubu: Konut
Tasarım Ekibi: Can Kendir, İpek Akgöz, Mert Yılmaz, Merve Aşçıoğlu
Architectural Project Team: Can Kendir, Işıl Sipal, Mert Yılmaz
Ana Yüklenici: Işıl Sipal
Projcet Manager: Işıl Sipal
Project Start Date: 2014
Project End Date: 2016
Construction Start Date: 2015
Construction End Date: 2016
Building Plot Area: 800 m2
Total Construction Area: 380 m²