13/17
Paylaş
Resmi Orjinal Boyutunda Göster
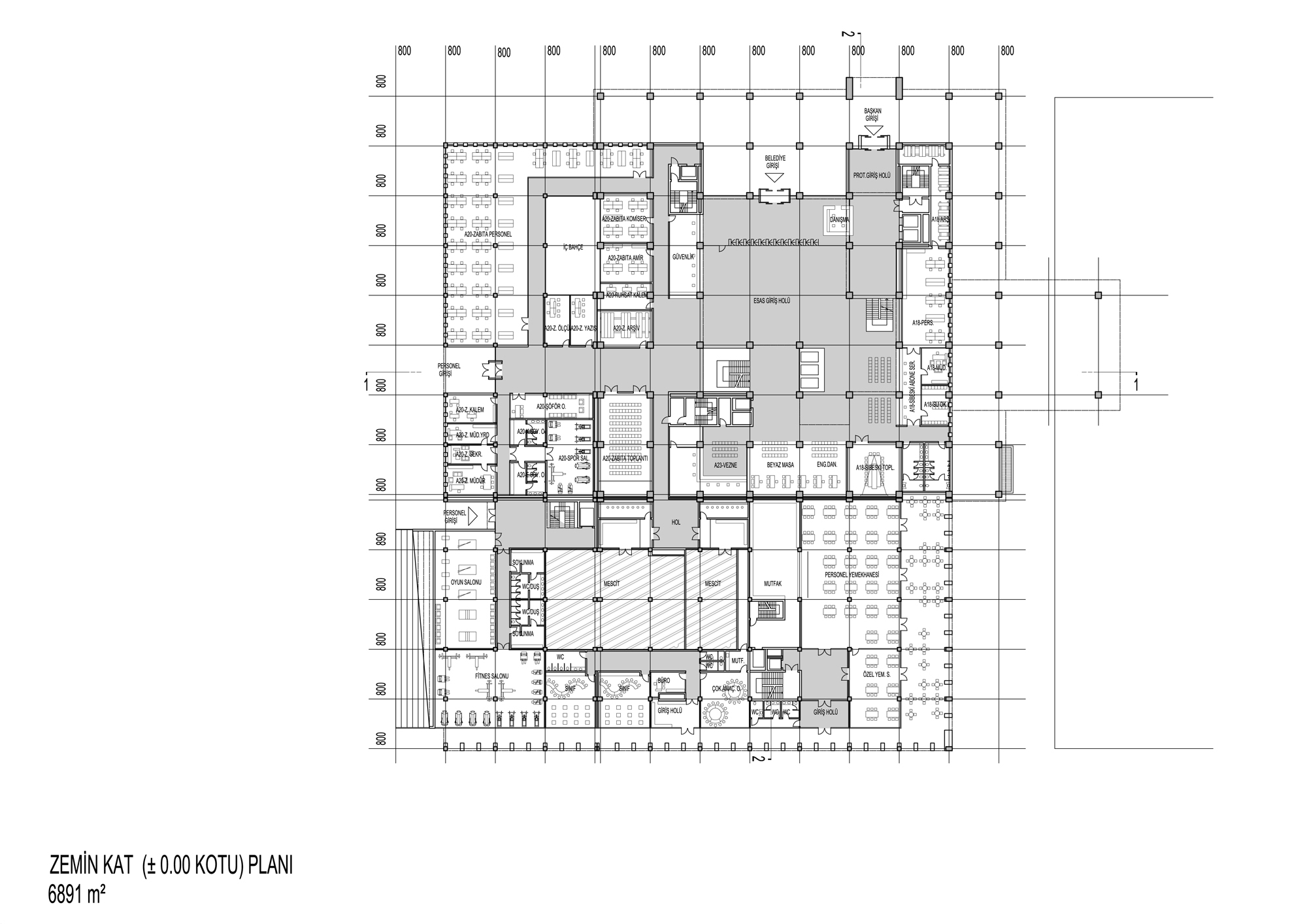
SİVAS BELEDİYESİ HİZMET BİNASI
Project Location: Sivas
Project Office: TH ve İdil Mimarlık
Project Type: Belediye Hizmet Binası
Proje Tipi Grubu: Kamu
Tasarım Ekibi: Tamer Başbuğ, Hasan Özbay, Baran İdil, Aslı Özbay
Employer: Sivas Belediyesi
Project Start Date: 2015
Project End Date: 2016
Building Plot Area: 31,786 m2
Total Construction Area: 64,700 m2