14/17
Paylaş
Resmi Orjinal Boyutunda Göster
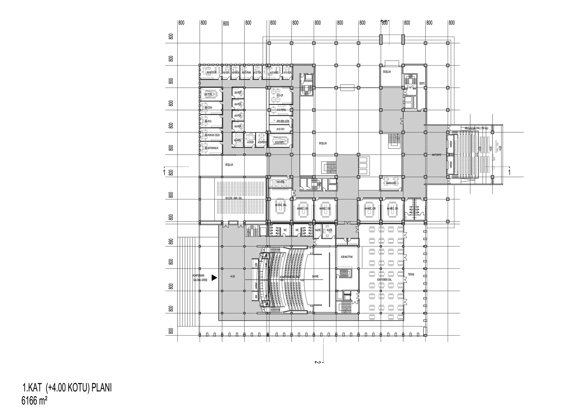
SİVAS BELEDİYESİ HİZMET BİNASI
Proje Yeri: Sivas
Proje Ofisi: TH ve İdil Mimarlık
Proje Tipi: Belediye Hizmet Binası
Proje Tipi Grubu: Kamu
Tasarım Ekibi: Tamer Başbuğ, Hasan Özbay, Baran İdil, Aslı Özbay
İşveren: Sivas Belediyesi
Proje Başlangıç Yılı: 2015
Proje Bitiş Yılı: 2016
Arsa Alanı: 31,786 m2
Toplam İnşaat Alanı: 64,700 m2