26/35
Paylaş
Resmi Orjinal Boyutunda Göster
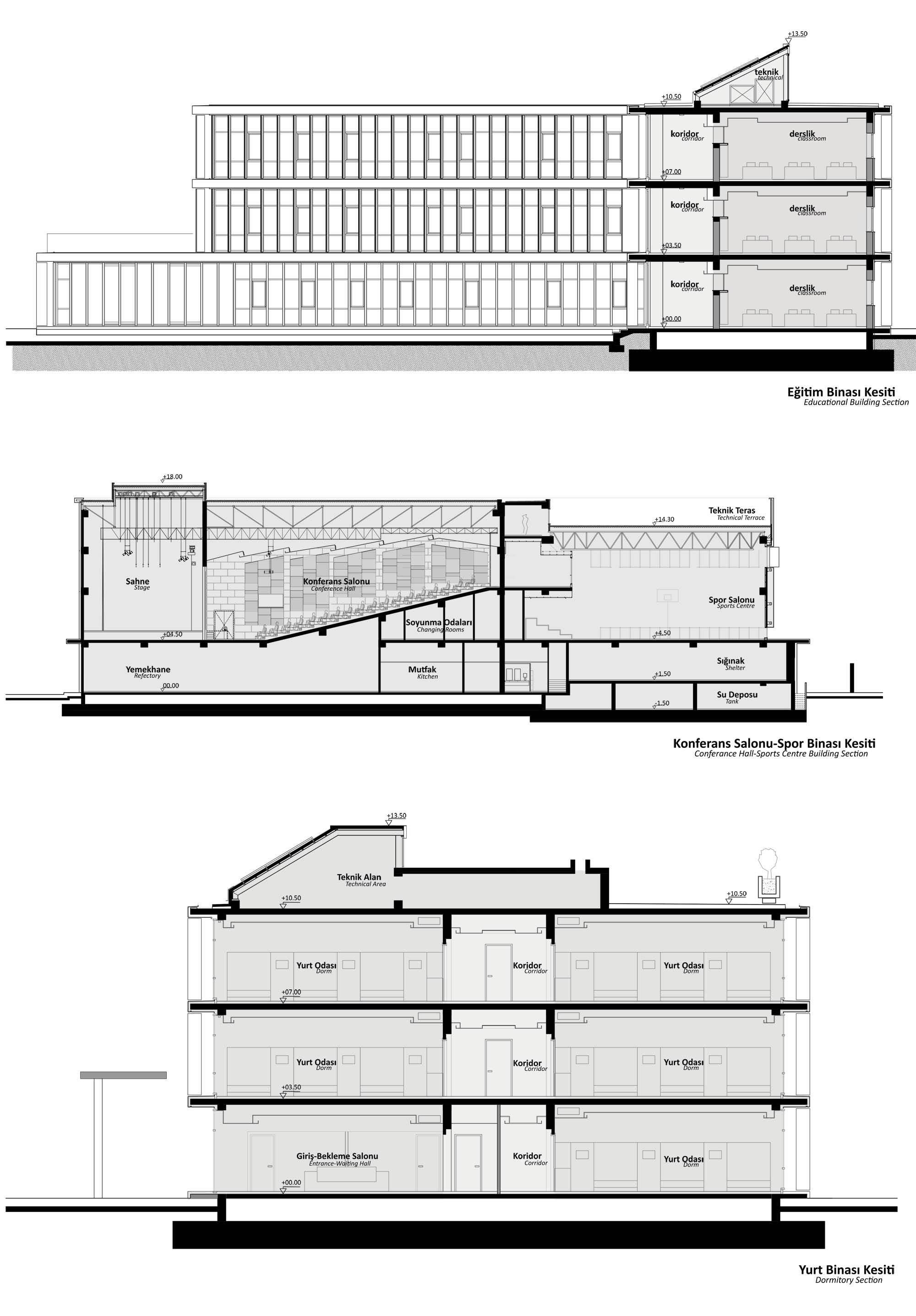
TAC SEV Yeni Kampüsü
Project Location: Tarsus, Mersin
Project Office: Erginoğlu & Çalışlar Mimarlık
Project Type: High School
Proje Tipi Grubu: Eğitim
Tasarım Ekibi: Kerem Erginoğlu, Hasan Çalışlar
Employer: Sağlık ve Eğitim Vakfı (SEV)
Consultant: Mimpa
Yardımcı: Arın Tanrıkulu, Onat Över, Ayça Taylan, Sezen Bilge, Zeynep Şankaynağı, Yasemin Hacıkura, Işık Süngü, Emre Cestel
Ana Yüklenici: RAN İnşaat
Interior Architecture: Erginoğlu & Çalışlar Mimarlık
Structural Project: Denge Mühendislik
Mechanical Project: Beta Teknik
Electrical Project: Enkom Mühendislik
Photography: Cemal Emden
Project Start Date: 2011
Project End Date: 2013
Construction Start Date: 2012
Construction End Date: 2014
Building Plot Area: 9399m²
Total Construction Area: 12650m²