30/35
Paylaş
Resmi Orjinal Boyutunda Göster
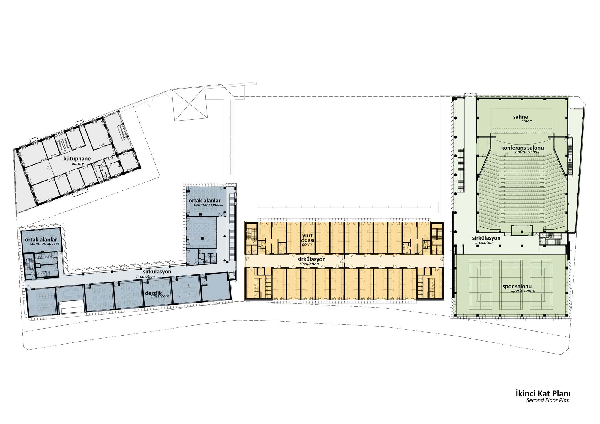
TAC SEV Yeni Kampüsü
Proje Yeri: Tarsus, Mersin
Proje Ofisi: Erginoğlu & Çalışlar Mimarlık
Proje Tipi: Lise / Ortaöğretim
Proje Tipi Grubu: Eğitim
Tasarım Ekibi: Kerem Erginoğlu, Hasan Çalışlar
İşveren: Sağlık ve Eğitim Vakfı (SEV)
Danışman: Mimpa
Yardımcı: Arın Tanrıkulu, Onat Över, Ayça Taylan, Sezen Bilge, Zeynep Şankaynağı, Yasemin Hacıkura, Işık Süngü, Emre Cestel
Ana Yüklenici: RAN İnşaat
İç Mekan Projesi: Erginoğlu & Çalışlar Mimarlık
Statik Projesi: Denge Mühendislik
Mekanik Projesi: Beta Teknik
Elektrik Projesi: Enkom Mühendislik
Fotoğraf: Cemal Emden
Proje Başlangıç Yılı: 2011
Proje Bitiş Yılı: 2013
İnşaat Başlangıç Yılı: 2012
İnşaat Bitiş Yılı: 2014
Arsa Alanı: 9399m²
Toplam İnşaat Alanı: 12650m²