6/24
Paylaş
Resmi Orjinal Boyutunda Göster
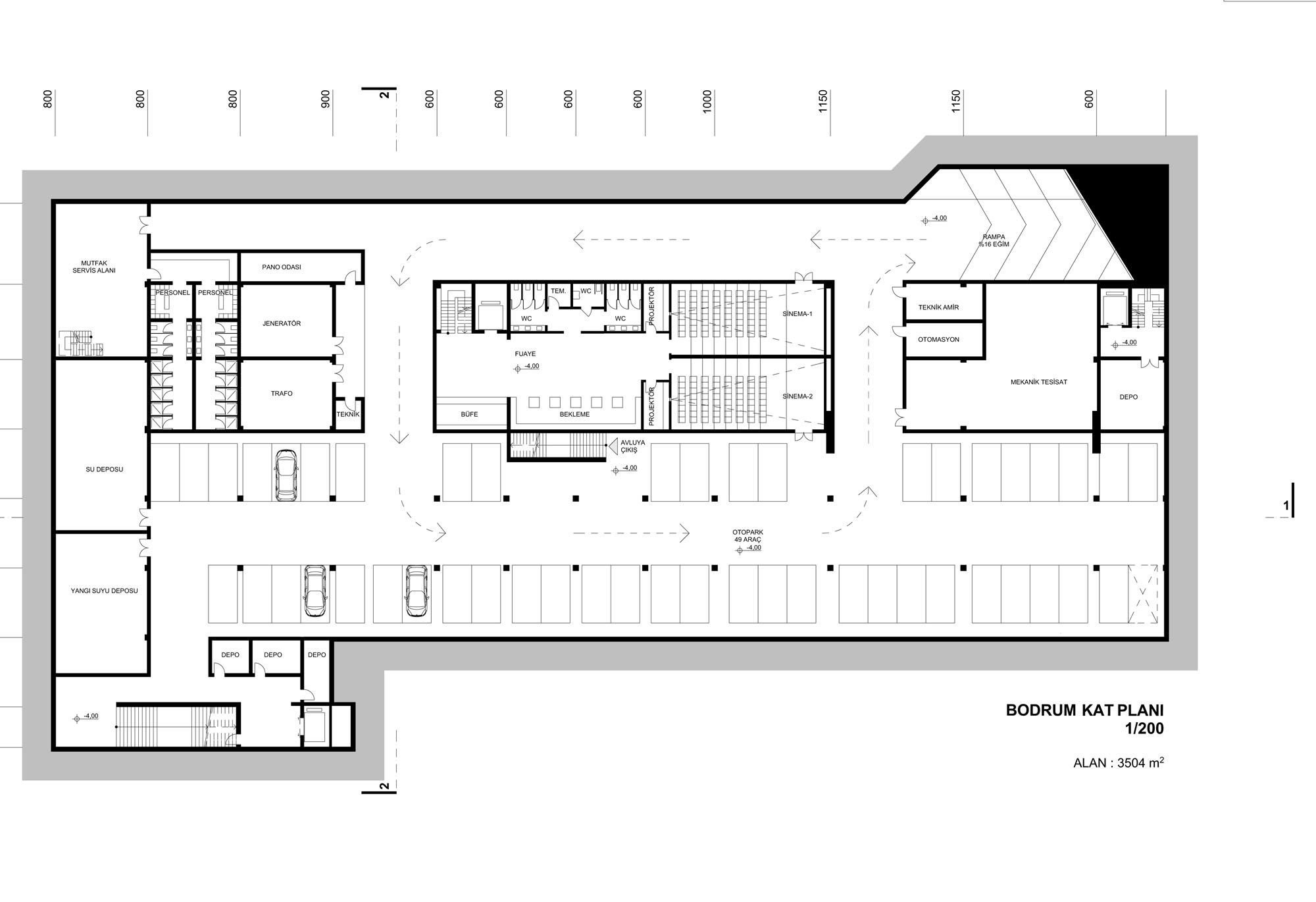
3. Mansiyon (TECE Mimarlık)
Project Location: Selçuk, İzmir
Project Office: TeCe Mimarlık
Project Type: Cultural Center
Proje Tipi Grubu: 3. Mansiyon
Tasarım Ekibi: Tülin Hadi, Cem İlhan
Yardımcı: Hande Sermet, Saruhan Oflaz, Sezin Beldağ, Utku Bilgili, Su Kapkın