7/24
Paylaş
Resmi Orjinal Boyutunda Göster
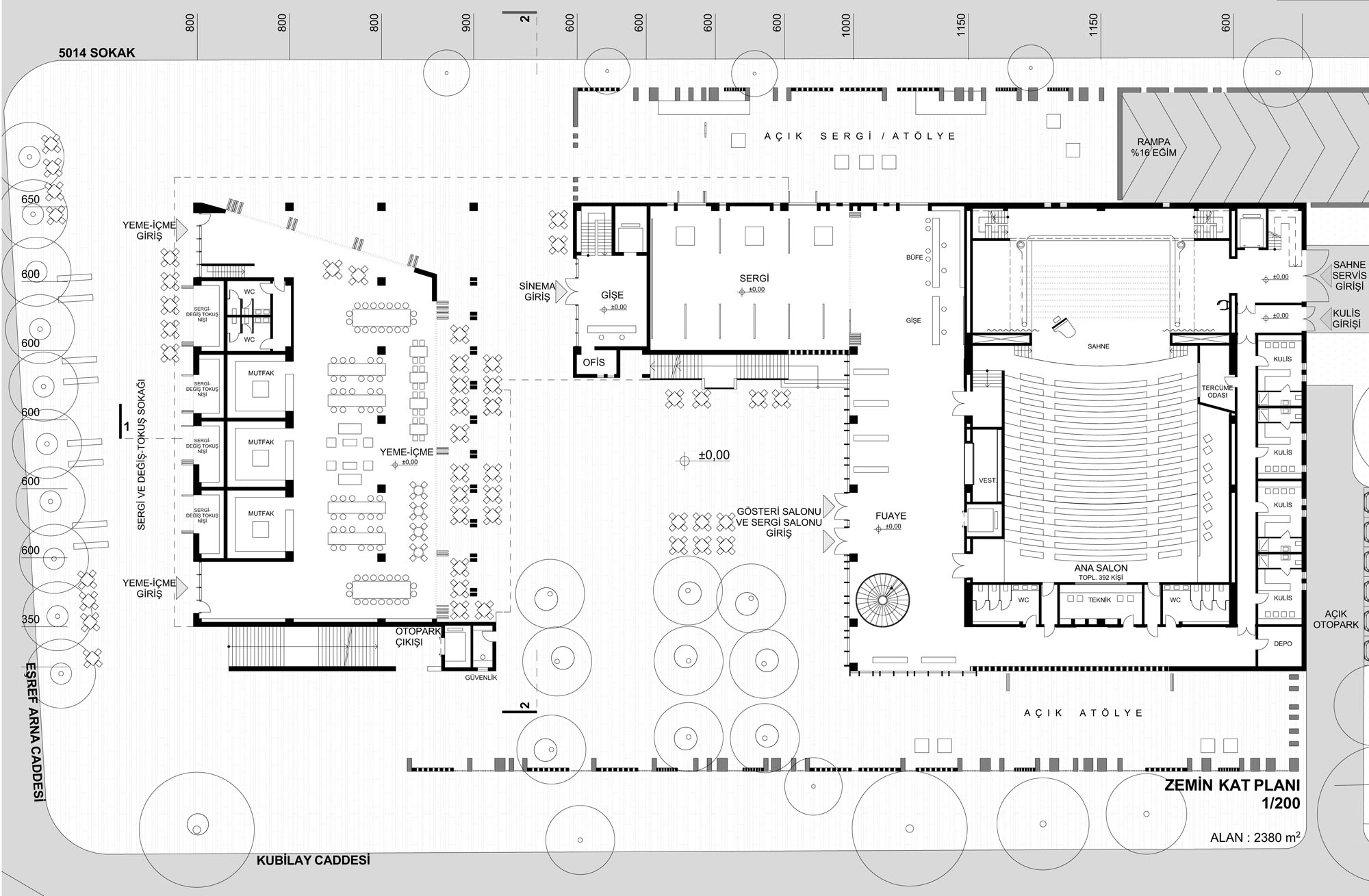
3. Mansiyon (TECE Mimarlık)
Proje Yeri: Selçuk, İzmir
Proje Ofisi: TeCe Mimarlık
Proje Tipi: Kültür Merkezi
Proje Tipi Grubu: 3. Mansiyon
Tasarım Ekibi: Tülin Hadi, Cem İlhan
Yardımcı: Hande Sermet, Saruhan Oflaz, Sezin Beldağ, Utku Bilgili, Su Kapkın