10/20
Paylaş
Resmi Orjinal Boyutunda Göster
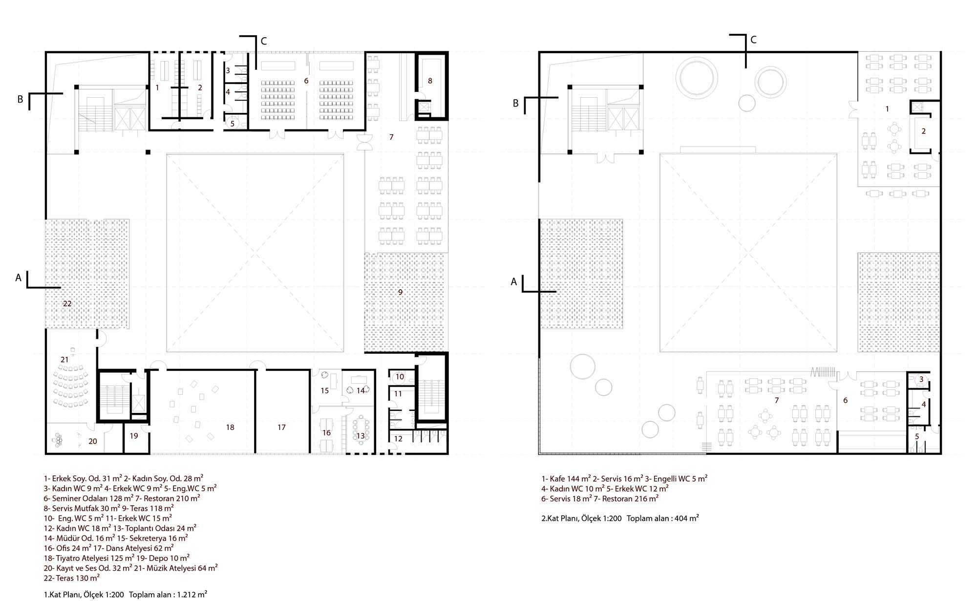
2. Mansiyon İzmir Selçuk Belediyesi Kültür ve Gençlik Merkezi Yarışması
Proje Yeri: İzmir, Selçuk
Proje Tipi: Kültür Merkezi
Proje Tipi Grubu: 2. Mansiyon
Tasarım Ekibi: Görkem Güvenç, Deniz Kurt Ertaş, İbrahim Anıl Biçer
Yardımcı: Andrea Perego, Francesco De Felice, Cemal Ertaş