7/20
Paylaş
Resmi Orjinal Boyutunda Göster
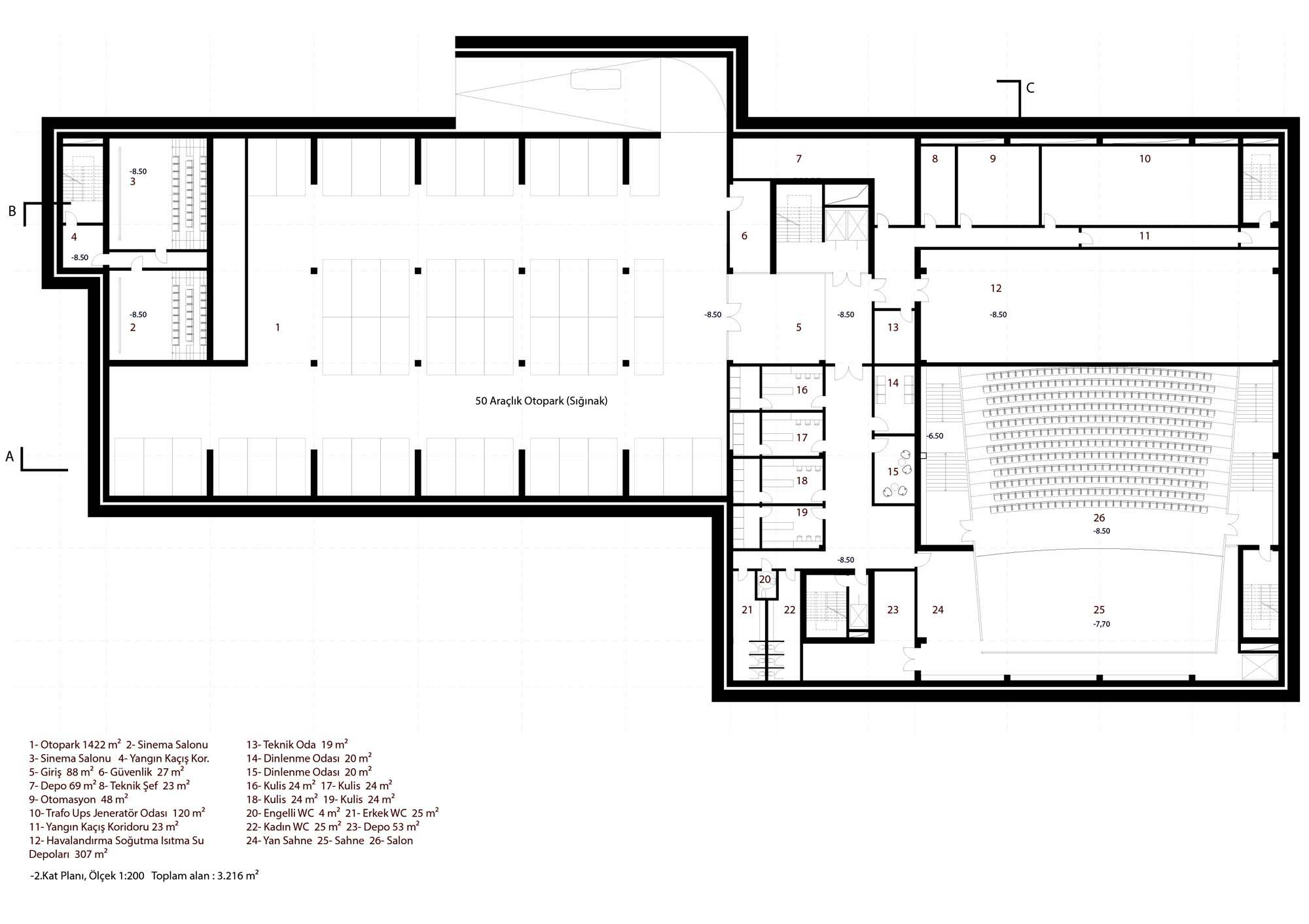
2. Mansiyon İzmir Selçuk Belediyesi Kültür ve Gençlik Merkezi Yarışması
Project Location: İzmir, Selçuk
Project Type: Cultural Center
Proje Tipi Grubu: 2. Mansiyon
Tasarım Ekibi: Görkem Güvenç, Deniz Kurt Ertaş, İbrahim Anıl Biçer
Yardımcı: Andrea Perego, Francesco De Felice, Cemal Ertaş