22/27
Paylaş
Resmi Orjinal Boyutunda Göster
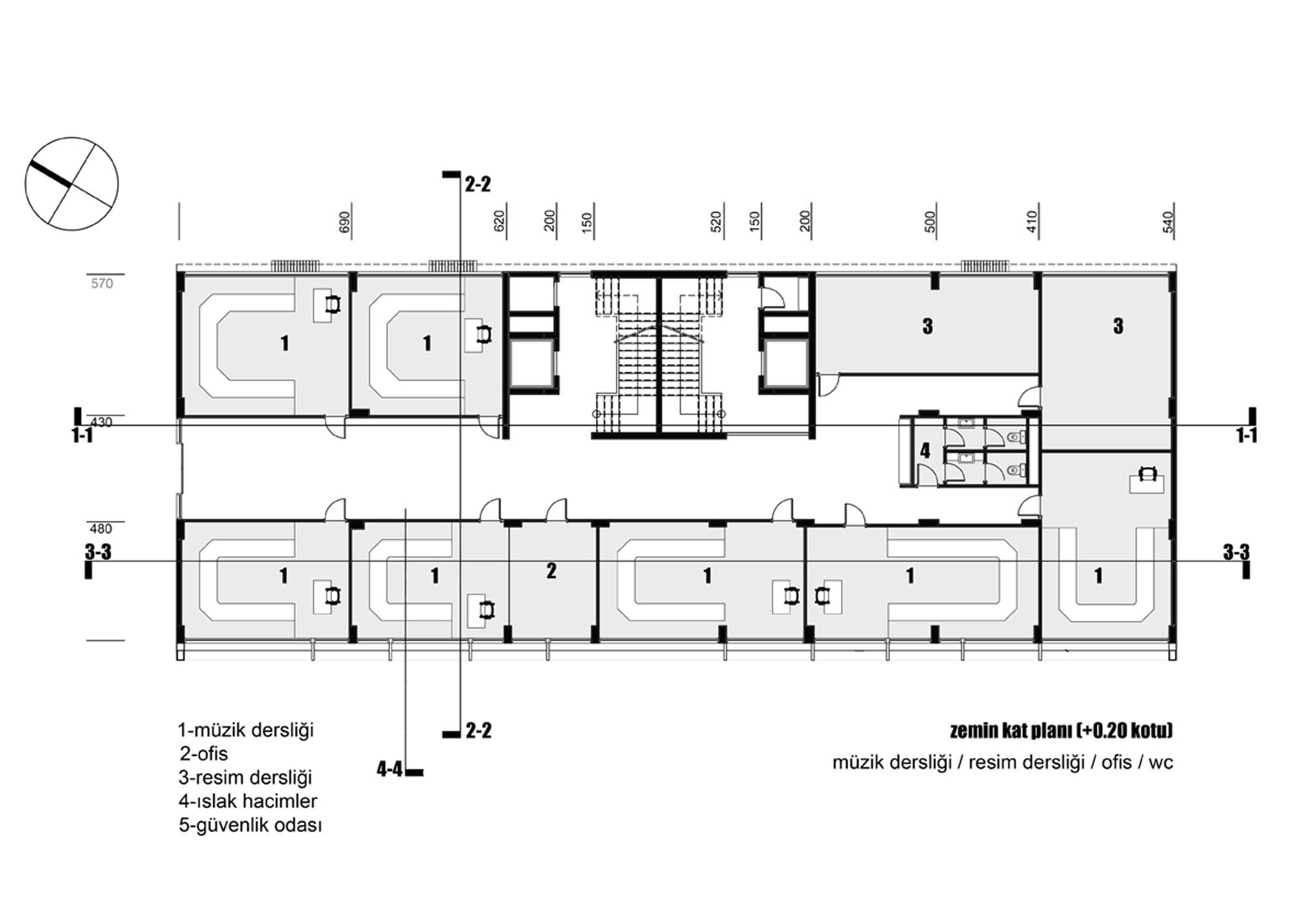
Gündoğdu Koleji Ofis ve Sanat Galerisi
Proje Yeri: Adana, Çukurova
Proje Ofisi: Eren Tümer Mimarlık Ofisi [ETMO]
Proje Tipi: Ofis, Sergi Mekanı / Galeri, Lise / Ortaöğretim, İlkokul
Proje Tipi Grubu: Kültür, Eğitim
Tasarım Ekibi: Eren Tümer
İşveren: Gündoğdu Okulları, Gökhan Gündoğdu
Yardımcı: Ece Sultan Karacık
İç Mekan Projesi: Tolga Taşkın
Statik Projesi: Aydın Tabakan
Mekanik Projesi: Fatih Çakallı
Elektrik Projesi: Güney Odak Mühendislik
Tesisat Projesi: Mahmut Kaya
Fotoğraf: Ozan Sihay
Şantiye Yöneticisi: Alp Okan Akverdi
Proje Başlangıç Yılı: 2016
Proje Bitiş Yılı: 2016
İnşaat Başlangıç Yılı: 2016
İnşaat Bitiş Yılı: 2016
Arsa Alanı: 10.100 m2
Toplam İnşaat Alanı: 3,500 m²