23/27
Paylaş
Resmi Orjinal Boyutunda Göster
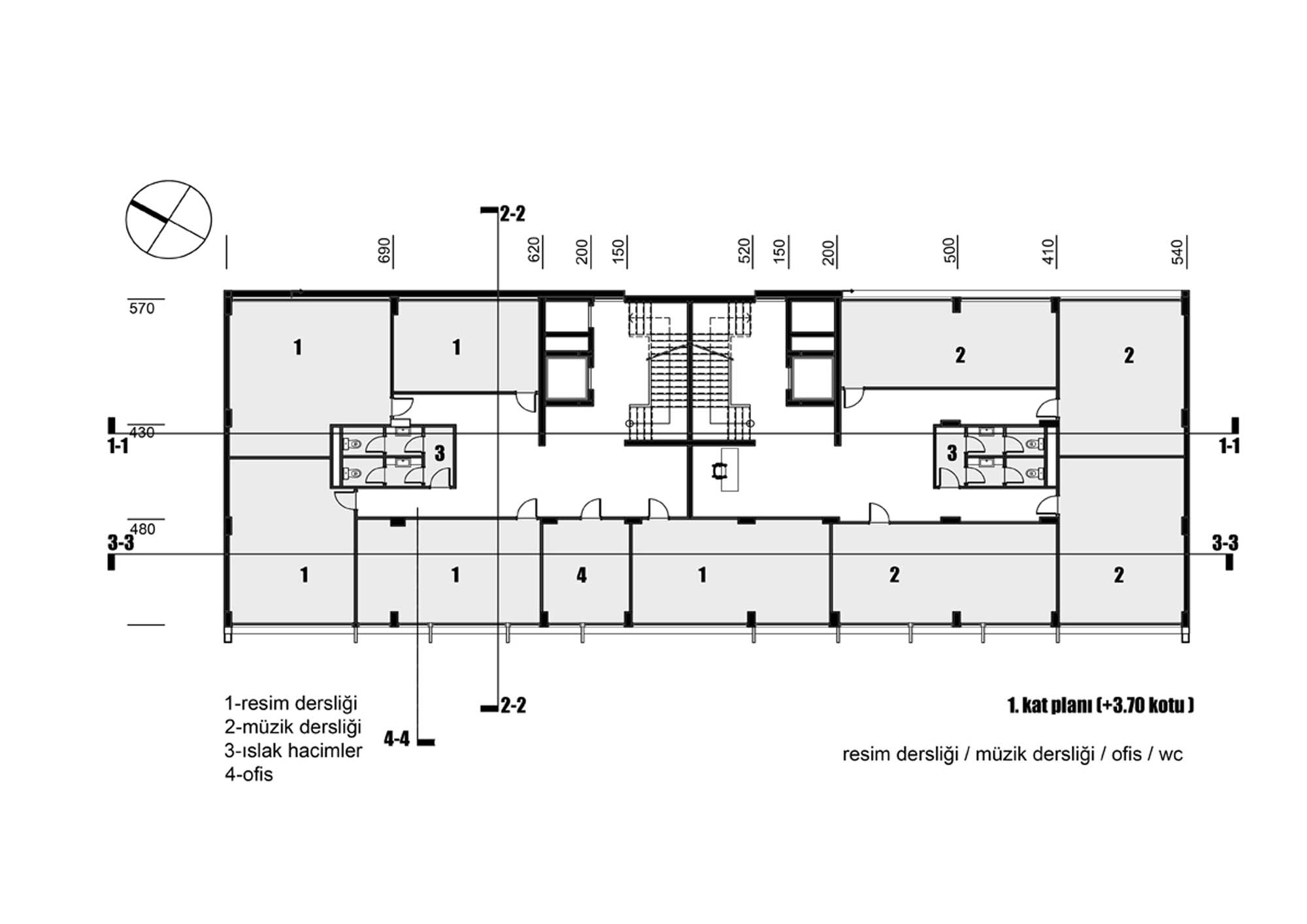
Gündoğdu Koleji Ofis ve Sanat Galerisi
Project Location: Adana, Çukurova
Project Office: Eren Tümer Mimarlık Ofisi [ETMO]
Project Type: Offices, Exhibition Hall / Gallery, High School, İlkokul
Proje Tipi Grubu: Kültür, Eğitim
Tasarım Ekibi: Eren Tümer
Employer: Gündoğdu Okulları, Gökhan Gündoğdu
Yardımcı: Ece Sultan Karacık
Interior Architecture: Tolga Taşkın
Structural Project: Aydın Tabakan
Mechanical Project: Fatih Çakallı
Electrical Project: Güney Odak Mühendislik
Plumbing Project: Mahmut Kaya
Photography: Ozan Sihay
Construction Site Manager: Alp Okan Akverdi
Project Start Date: 2016
Project End Date: 2016
Construction Start Date: 2016
Construction End Date: 2016
Building Plot Area: 10.100 m2
Total Construction Area: 3,500 m²