37/54
Paylaş
Resmi Orjinal Boyutunda Göster
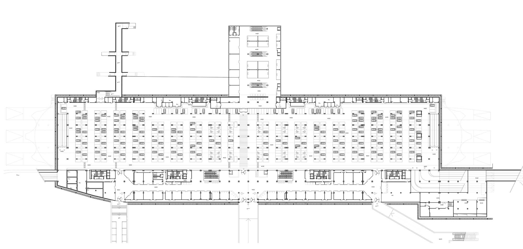
TCDD YHT Gar Kompleksi
Project Location: Ankara, Çankaya
Project Office: A Tasarım Mimarlık
Project Type: Railway Buildings
Proje Tipi Grubu: Ulaşım
Tasarım Ekibi: Ali Osman Öztürk
Architectural Project Team: İrem Aker Büyükkalay, Levent Balcı, Niyazi Ayvaz, Canan Arslan, Hasret Devran İnce, Sinan Özkan, Ülkü Eroğlu, Asu Çetinkaya, Durmuş Ursun
Employer: Cengiz Holding, Limak Holding, Kolin İnşaat (CLK)
Consultant: Priedemann Cephe Danışmanlığı Tic.Ltd. Şti., Vanesco
Yardımcı: Canan Arslan, Hasret Devran İnce, İrem Aker Büyükkalay, Levent Balcı, Nihan Kocaoğlu Ürek, Niyazi Ayvaz, Sinan Özkan
Ana Yüklenici: Cengiz Holding, Limak Holding, Kolin İnşaat (CLK)
Peyzaj Mimarlığı: Promim Çevre Düzenleme, Kentsel Tasarım
Interior Architecture: A Tasarım Mimarlık
Projcet Manager: Ali Osman Öztürk, Levent Balcı, İrem Aker Büyükkalay, Canan Arslan, Hasret Devran İnce, Sinan Özkan
Concept Design: A Tasarım Mimarlık
Construction Drawings: A Tasarım Mimarlık
Facade Design: A Tasarım Mimarlık
Structural Project: Prota Mühendislik
Mechanical Project: Metta Mühendislik
Electrical Project: Yurdakul Mühendislik
Plumbing Project: Metta Mühendislik
Çelik Projesi: Prota Mühendislik
Altyapı Projesi: Sigal Mühendislik
Acoustic Consultant: Mezzo Stüdyo
Yangın Tahliye Projesi: Alara Proje Mühendislik
Model: Nuh Tüccar
Photography: Fethi Mağara
Construction Site Manager: Burçin Can Gül
Project Start Date: 2013
Project End Date: 2014
Construction Start Date: 2014
Construction End Date: 2016
Building Plot Area: 70,000 m²
Total Construction Area: 220,000 m2