38/54
Paylaş
Resmi Orjinal Boyutunda Göster
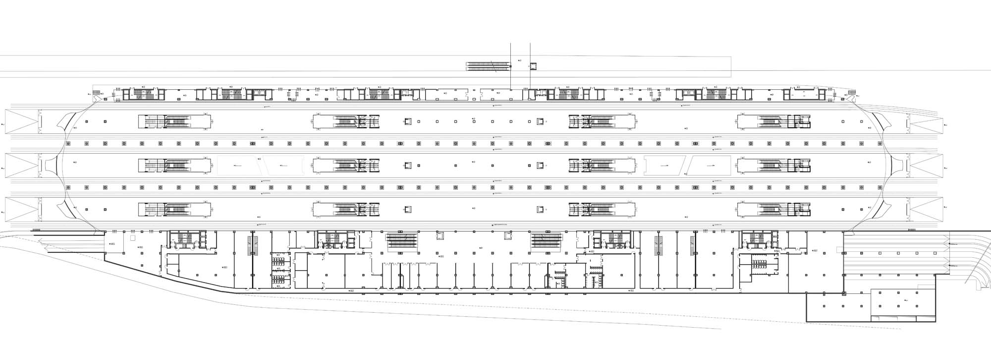
TCDD YHT Gar Kompleksi
Proje Yeri: Ankara, Çankaya
Proje Ofisi: A Tasarım Mimarlık
Proje Tipi: Demiryolu Yapıları
Proje Tipi Grubu: Ulaşım
Tasarım Ekibi: Ali Osman Öztürk
Mimari Proje Ekibi: İrem Aker Büyükkalay, Levent Balcı, Niyazi Ayvaz, Canan Arslan, Hasret Devran İnce, Sinan Özkan, Ülkü Eroğlu, Asu Çetinkaya, Durmuş Ursun
İşveren: Cengiz Holding, Limak Holding, Kolin İnşaat (CLK)
Danışman: Priedemann Cephe Danışmanlığı Tic.Ltd. Şti., Vanesco
Yardımcı: Canan Arslan, Hasret Devran İnce, İrem Aker Büyükkalay, Levent Balcı, Nihan Kocaoğlu Ürek, Niyazi Ayvaz, Sinan Özkan
Ana Yüklenici: Cengiz Holding, Limak Holding, Kolin İnşaat (CLK)
Peyzaj Mimarlığı: Promim Çevre Düzenleme, Kentsel Tasarım
İç Mekan Projesi: A Tasarım Mimarlık
Proje Yöneticisi: Ali Osman Öztürk, Levent Balcı, İrem Aker Büyükkalay, Canan Arslan, Hasret Devran İnce, Sinan Özkan
Konsept Tasarımı: A Tasarım Mimarlık
Uygulama Projesi: A Tasarım Mimarlık
Cephe Tasarımı: A Tasarım Mimarlık
Statik Projesi: Prota Mühendislik
Mekanik Projesi: Metta Mühendislik
Elektrik Projesi: Yurdakul Mühendislik
Tesisat Projesi: Metta Mühendislik
Çelik Projesi: Prota Mühendislik
Altyapı Projesi: Sigal Mühendislik
Akustik Danışmanı: Mezzo Stüdyo
Yangın Tahliye Projesi: Alara Proje Mühendislik
Maket: Nuh Tüccar
Fotoğraf: Fethi Mağara
Şantiye Yöneticisi: Burçin Can Gül
Proje Başlangıç Yılı: 2013
Proje Bitiş Yılı: 2014
İnşaat Başlangıç Yılı: 2014
İnşaat Bitiş Yılı: 2016
Arsa Alanı: 70,000 m²
Toplam İnşaat Alanı: 220,000 m2